Официальное опубликование правовых актов
ОФИЦИАЛЬНОЕ ОПУБЛИКОВАНИЕ
Приказ Министерства градостроительной деятельности и развития агломераций Нижегородской области от 27.12.2022 № 07-02-03/143
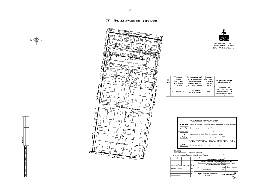
"Об утверждении проекта межевания территории в границах улиц Космонавтов, Свободы, Розы Люксембург, Герцена в городе Кстово Нижегородской области"
(Зарегистрирован 25.01.2023 № 22431-330-007-02-03/143)
Номер опубликования: 5201202301270019
Дата опубликования: 27.01.2023
Страница №5 из 5:
Увеличить