Официальное опубликование правовых актов
ОФИЦИАЛЬНОЕ ОПУБЛИКОВАНИЕ
Приказ Министерства градостроительной деятельности и развития агломераций Нижегородской области от 16.12.2022 № 07-02-03/117
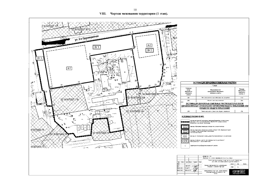
"Об утверждении проекта планировки и межевания территории, расположенной по улице 2-я Оранжерейная (участок № 1) в Советском районе города Нижнего Новгорода"
(Зарегистрирован 16.01.2023 № 22328-330-007-02-03/117)
Номер опубликования: 5201202301190009
Дата опубликования: 19.01.2023
Страница №12 из 14:
Увеличить