Официальное опубликование правовых актов
ОФИЦИАЛЬНОЕ ОПУБЛИКОВАНИЕ
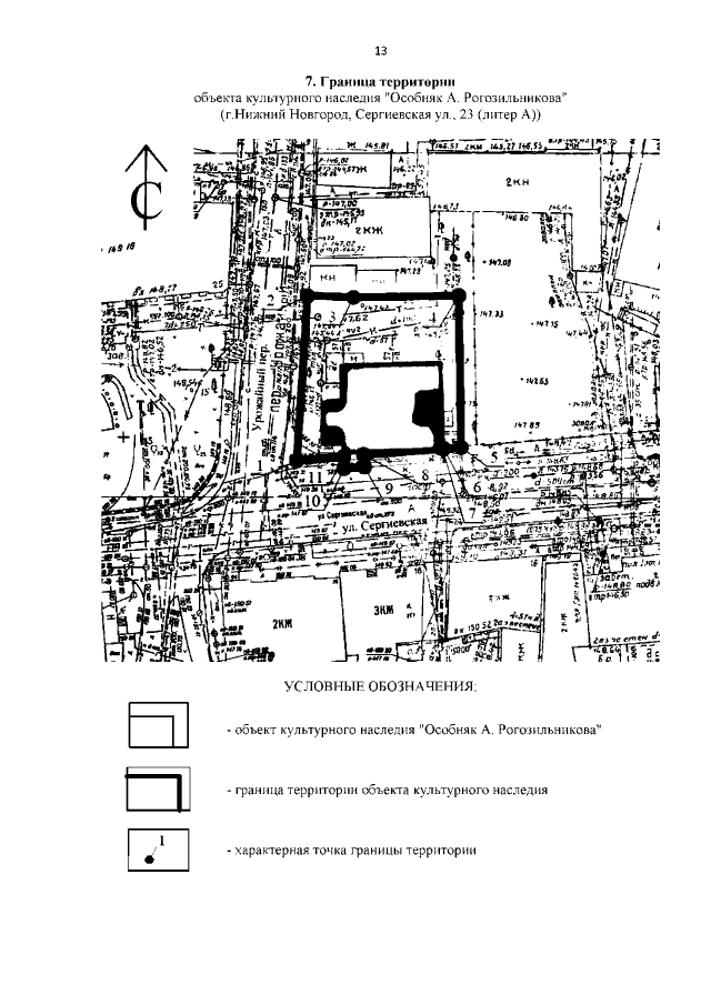
Приказ Управления государственной охраны объектов культурного наследия Нижегородской области от 28.04.2022 № 155 "Об утверждении границ и режима использования территорий объектов культурного наследия, расположенных в г. Нижнем Новгороде"
(Зарегистрирован 16.05.2022 № 20143-518-155)
Номер опубликования: 5201202205190008
Дата опубликования: 19.05.2022
Страница №15 из 18:
Увеличить