Официальное опубликование правовых актов
ОФИЦИАЛЬНОЕ ОПУБЛИКОВАНИЕ
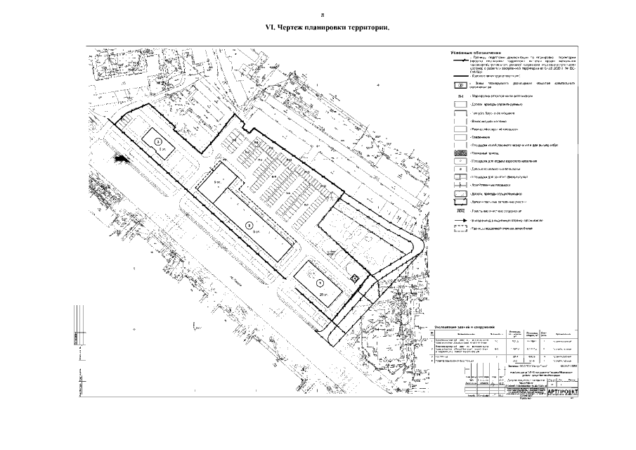
Приказ Министерства градостроительной деятельности и развития агломераций Нижегородской области от 17.12.2021 № 07-02-03/110
"Об утверждении документации по планировке территории (проект планировки территории, включая проект межевания территории) в районе домов № 5-15 по проспекту Героев в Московском районе города Нижнего Новгорода"
(Зарегистрирован 20.01.2022 № 19114-330-007-02-03/110)
Номер опубликования: 5201202201210002
Дата опубликования: 21.01.2022
Страница №10 из 12:
Увеличить