Официальное опубликование правовых актов
ОФИЦИАЛЬНОЕ ОПУБЛИКОВАНИЕ
Приказ Министерства градостроительной деятельности и развития агломераций Нижегородской области от 15.12.2021 № 07-02-03/105
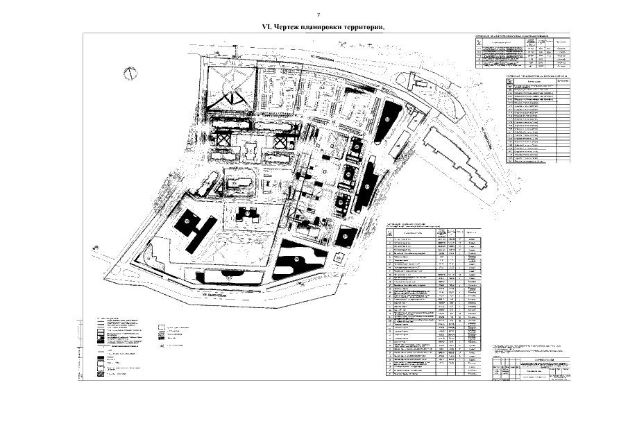
"Об утверждении документации по внесению изменений в проект планировки и межевания территории на участке от дома № 23 до здания № 163В по улице Родионова в Нижегородском районе города Нижнего Новгорода"
(Зарегистрирован 13.01.2022 № 19076-330-007-02-03/105)
Номер опубликования: 5201202201140015
Дата опубликования: 14.01.2022
Страница №9 из 10:
Увеличить