Официальное опубликование правовых актов
ОФИЦИАЛЬНОЕ ОПУБЛИКОВАНИЕ
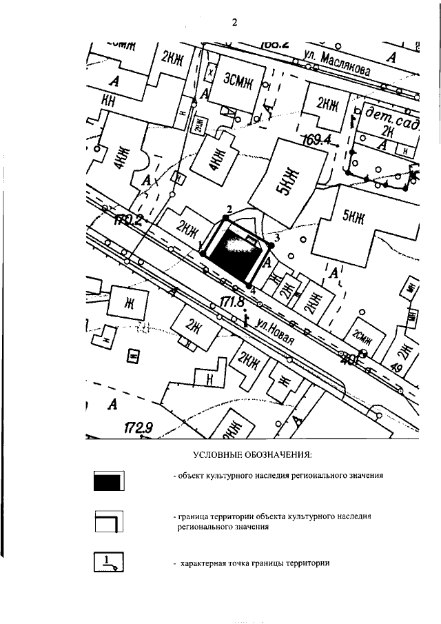
Приказ Управления государственной охраны объектов культурного наследия Нижегородской области № 312 "О внесении изменений в приказ управления государственной охраны объектов культурного наследия Нижегородской области от 23 марта 2020 г. № 129"
(Зарегистрирован 28.12.2021 № 18985-518-312)
Номер опубликования: 5201202112300009
Дата опубликования: 30.12.2021
Страница №2 из 3:
Увеличить