Официальное опубликование правовых актов
ОФИЦИАЛЬНОЕ ОПУБЛИКОВАНИЕ
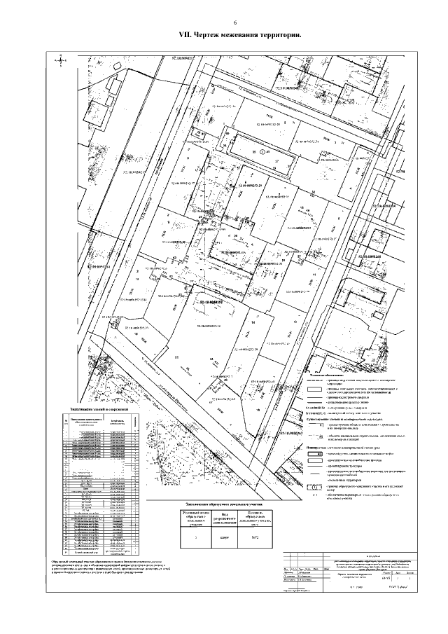
Приказ Министерства градостроительной деятельности и развития агломераций Нижегородской области от 02.11.2021 № 07-02-03/84 "Об утверждении документации по планировке территории (проекта планировки территории, включая проект межевания территории) в границах улиц Подводников, Таганская, Адмирала Нахимова, проспекта Ленина в Ленинском районе города Нижнего Новгорода"
(Зарегистрирован 29.11.2021 № 18404-330-007-02-03/84)
Номер опубликования: 5201202112010001
Дата опубликования: 01.12.2021
Страница №8 из 8:
Увеличить