Официальное опубликование правовых актов
ОФИЦИАЛЬНОЕ ОПУБЛИКОВАНИЕ
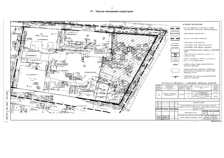
Приказ Министерства градостроительной деятельности и развития агломераций Нижегородской области от 26.10.2021 № 07-02-03/87 "Об утверждении проекта межевания территории в границах Верхне-Волжской набережной, улиц Пискунова, Минина в Нижегородском районе города Нижнего Новгорода"
(Зарегистрирован 22.11.2021 № 18321-330-007-02-03/87)
Номер опубликования: 5201202111260016
Дата опубликования: 26.11.2021
Страница №5 из 6:
Увеличить