Официальное опубликование правовых актов
ОФИЦИАЛЬНОЕ ОПУБЛИКОВАНИЕ
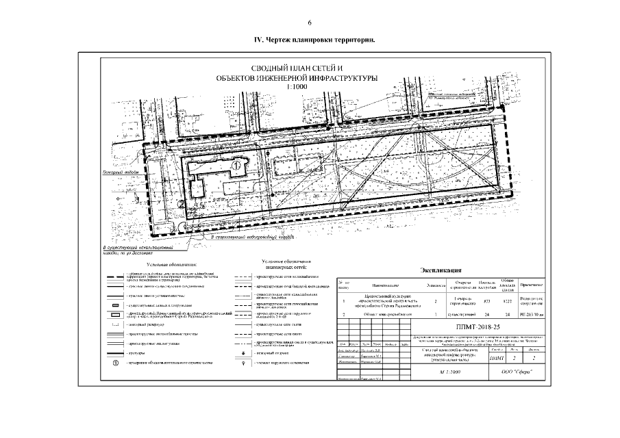
Приказ Министерства градостроительной деятельности и развития агломераций Нижегородской области от 19.08.2021 № 07-02-03/62 "Об утверждении документации по планировке территории (проект планировки территории, включая проект межевания территории) в районе дома № 2а по улице 19-я линия в поселке Доскино Автозаводского района города Нижнего Новгорода"
(Зарегистрирован 14.09.2021 № 17795-330-007-02-03/62)
Номер опубликования: 5201202109150010
Дата опубликования: 15.09.2021
Страница №8 из 9:
Увеличить