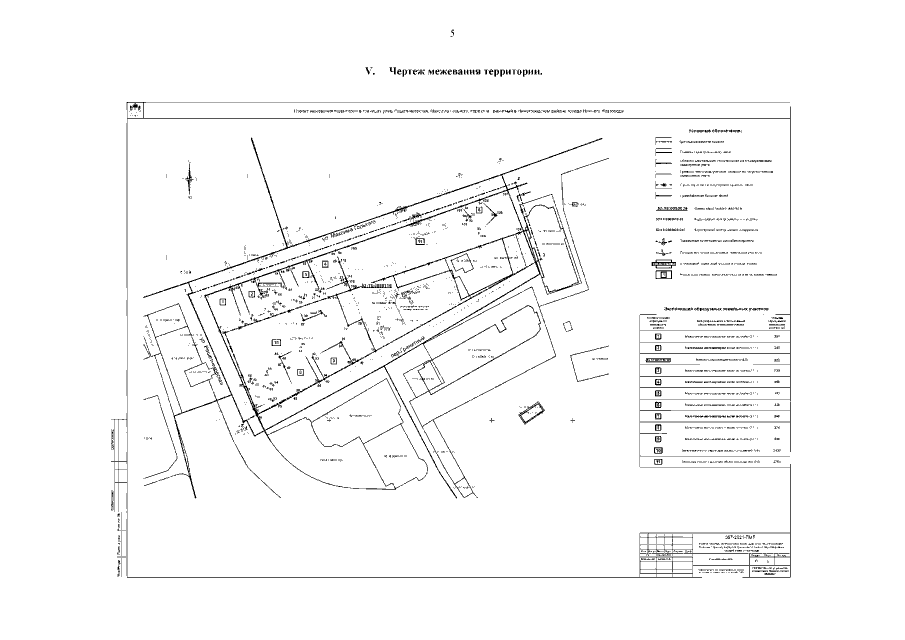
Приказ Министерства градостроительной деятельности и развития агломераций Нижегородской области от 27.05.2021 № 07-02-03/34 "Об утверждении проекта межевания территории в границах улиц Решетниковская, Максима Горького, переулка Гранитный в Нижегородском районе города Нижнего Новгорода"
(Зарегистрирован 22.06.2021 № 17432-330-007-02-03/34)
(Зарегистрирован 22.06.2021 № 17432-330-007-02-03/34)
Номер опубликования: 5201202106280001
Дата опубликования:
28.06.2021
