Официальное опубликование правовых актов
ОФИЦИАЛЬНОЕ ОПУБЛИКОВАНИЕ
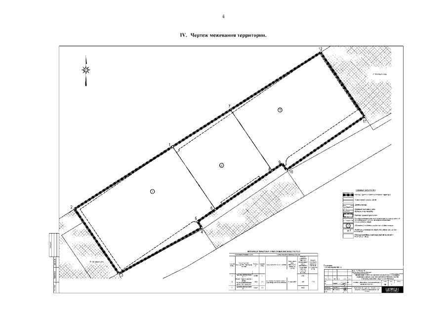
Приказ Министерства градостроительной деятельности и развития агломераций Нижегородской области от 29.03.2021 № 07-02-03/13 "Об утверждении документации по внесению изменений в документацию по планировке территории в границах улиц Героя Шнитникова, Булавина, реки Ока в Автозаводском районе города Нижнего Новгорода"
(Зарегистрирован 15.04.2021 № 17033-330-007-02-03/13)
Номер опубликования: 5201202104160014
Дата опубликования: 16.04.2021
Страница №6 из 7:
Увеличить