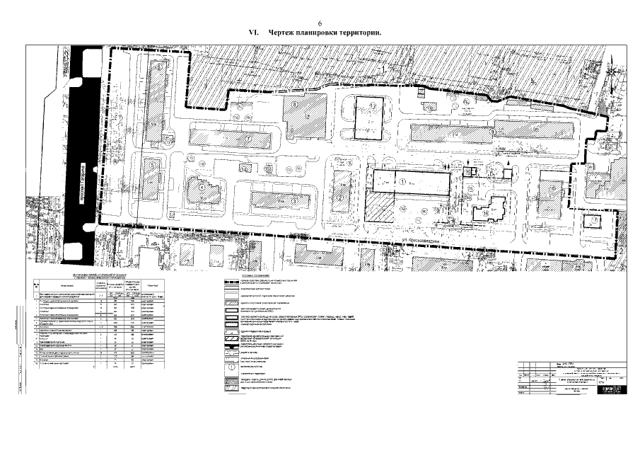
Приказ Министерства градостроительной деятельности и развития агломераций Нижегородской области от 03.03.2021 № 07-02-03/9 "Об утверждении документации по внесению изменений в проект планировки и межевания территории в границах проспекта Гагарина, улицы Краснозвездная в Советском районе города Нижнего Новгорода"
(Зарегистрирован 25.03.2021 № 16955-330-007-02-03/9)
(Зарегистрирован 25.03.2021 № 16955-330-007-02-03/9)
Номер опубликования: 5201202103260001
Дата опубликования:
26.03.2021
