Официальное опубликование правовых актов
ОФИЦИАЛЬНОЕ ОПУБЛИКОВАНИЕ
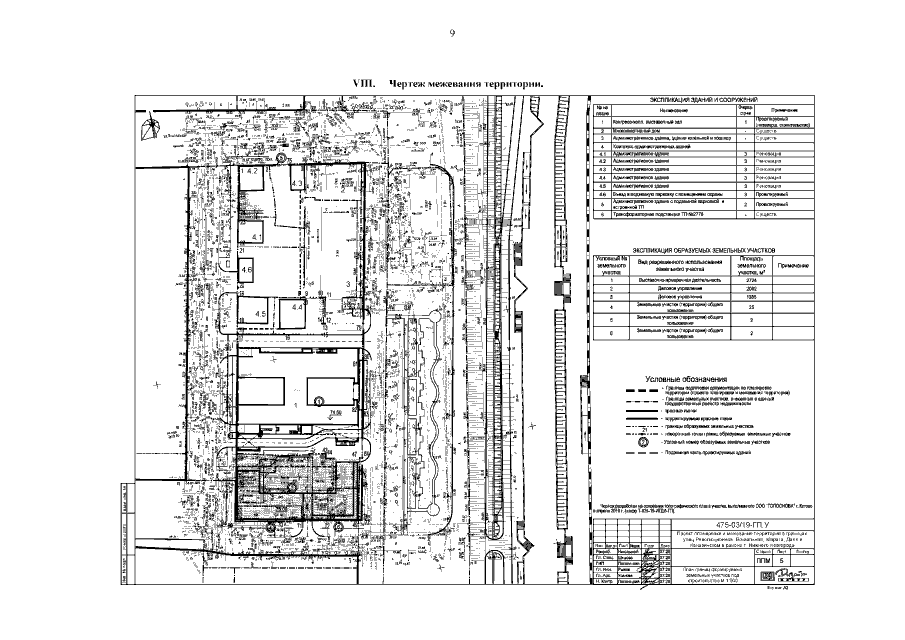
Приказ Министерства градостроительной деятельности и развития агломераций Нижегородской области от 22.12.2020 № 07-02-03/131 "Об утверждении документации по планировке территории (проекта планировки и межевания территории) в границах улиц Революционная, Вокзальная, Марата, Даля в Канавинском районе города Нижнего Новгорода"
(Зарегистрирован 21.01.2021 № 16705-330-007-02-03/131)
Номер опубликования: 5201202101250002
Дата опубликования: 25.01.2021
Страница №11 из 11:
Увеличить