Официальное опубликование правовых актов
ОФИЦИАЛЬНОЕ ОПУБЛИКОВАНИЕ
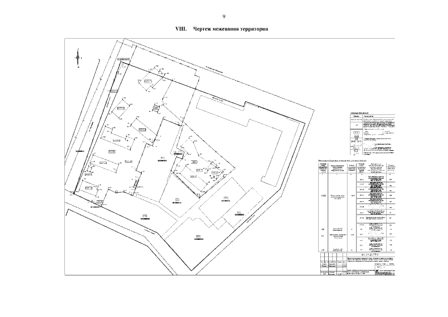
Приказ Министерства градостроительной деятельности и развития агломераций Нижегородской области от 30.11.2020 № 07-02-03/119 "Об утверждении документации по внесению изменений в проект планировки и межевания территории в границах улиц Ковровская, Родниковая, Максима Горького, площадь Сенная, Казанская набережная в Нижегородском и Советском районах города Нижнего Новгорода"
(Зарегистрирован 24.12.2020 № 16585-330-007-02-03/119)
Номер опубликования: 5201202012280010
Дата опубликования: 28.12.2020
Страница №11 из 12:
Увеличить