Официальное опубликование правовых актов
ОФИЦИАЛЬНОЕ ОПУБЛИКОВАНИЕ
Приказ Министерства градостроительной деятельности и развития агломераций Нижегородской области от 19.10.2020 № 07-02-03/112
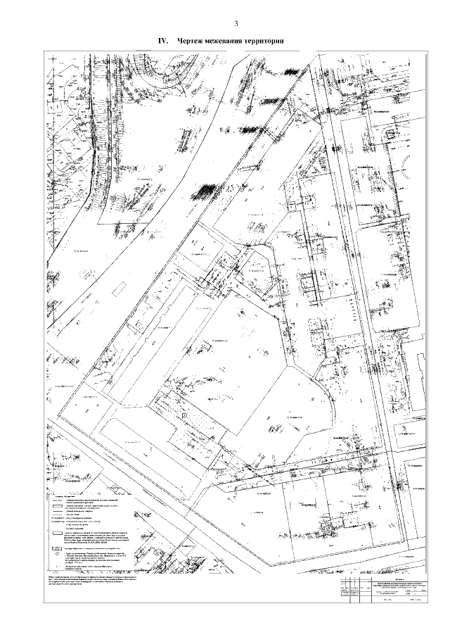
"Об утверждении документации по внесению изменений в проект межевания территории в границах проспекта Гагарина, улицы Ларина, Голованова в Приокском районе города Нижнего Новгорода"
(Зарегистрирован 06.11.2020 № 15797-330-007-02-03/112)
Номер опубликования: 5201202011060011
Дата опубликования: 06.11.2020
Страница №5 из 5:
Увеличить