Официальное опубликование правовых актов
ОФИЦИАЛЬНОЕ ОПУБЛИКОВАНИЕ
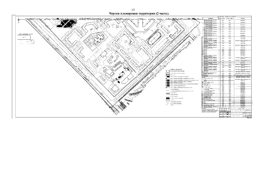
Приказ Министерства градостроительной деятельности и развития агломераций Нижегородской области от 29.09.2020 № 07-02-03/104
"Об утверждении проекта планировки территории в границах проспекта Рачкова, улицы Магистральная и проекта межевания территории по проспекту Рачкова в городе Кстово Кстовского района Нижегородской области"
(Зарегистрирован 14.10.2020 № 15652-330-007-02-03/104)
Номер опубликования: 5201202010160002
Дата опубликования: 16.10.2020
Страница №15 из 18:
Увеличить