Официальное опубликование правовых актов
ОФИЦИАЛЬНОЕ ОПУБЛИКОВАНИЕ
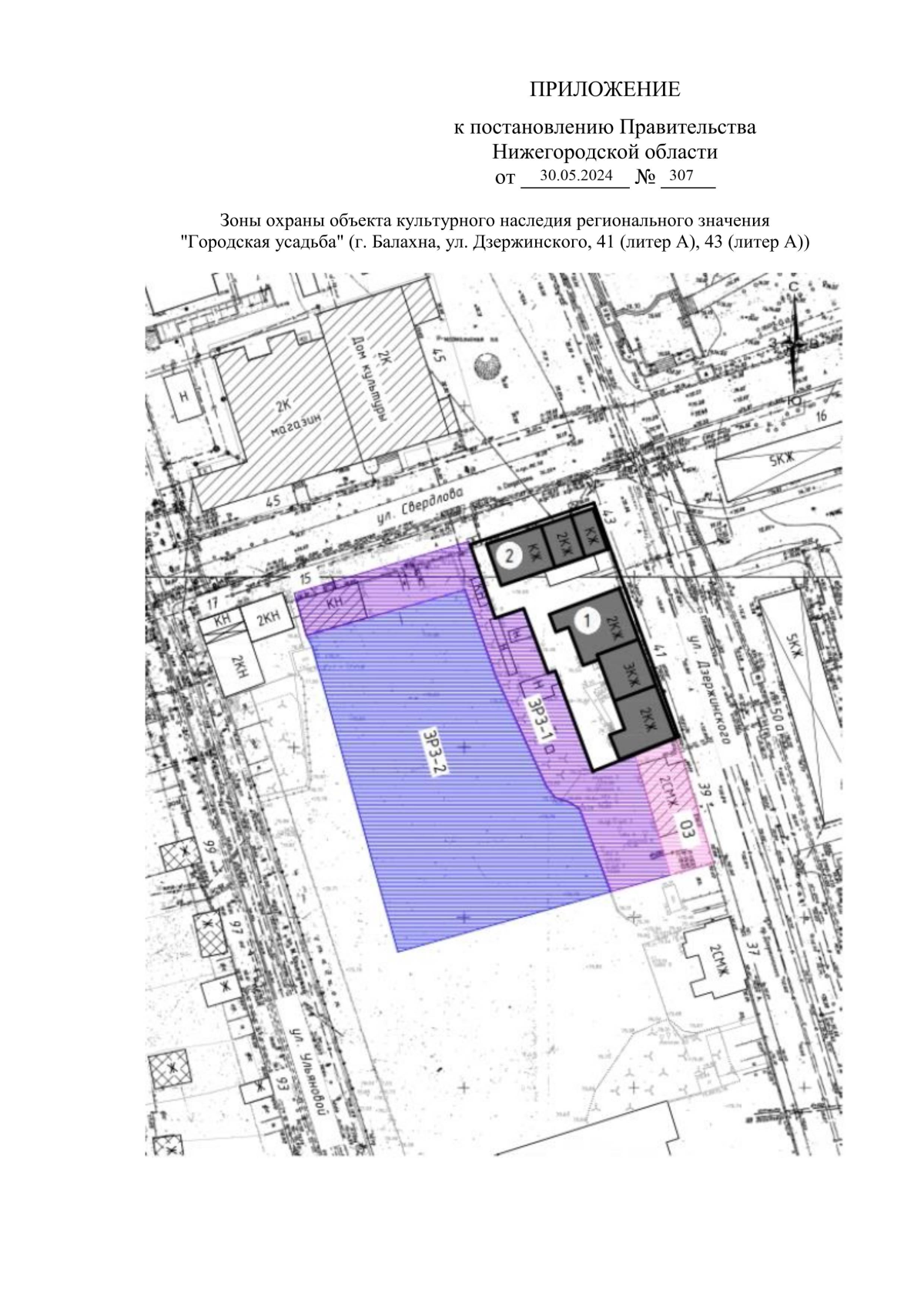
Постановление Правительства Нижегородской области от 30.05.2024 № 307
"Об установлении зон охраны объекта культурного наследия регионального значения "Городская усадьба" (Нижегородская область, г. Балахна, ул. Дзержинского, 41 (литер А), 43 (литер А)), утверждении требований к градостроительным регламентам в границах территорий данных зон"
Номер опубликования: 5200202406030005
Дата опубликования: 03.06.2024
Страница №3 из 17:
Увеличить