Официальное опубликование правовых актов
ОФИЦИАЛЬНОЕ ОПУБЛИКОВАНИЕ
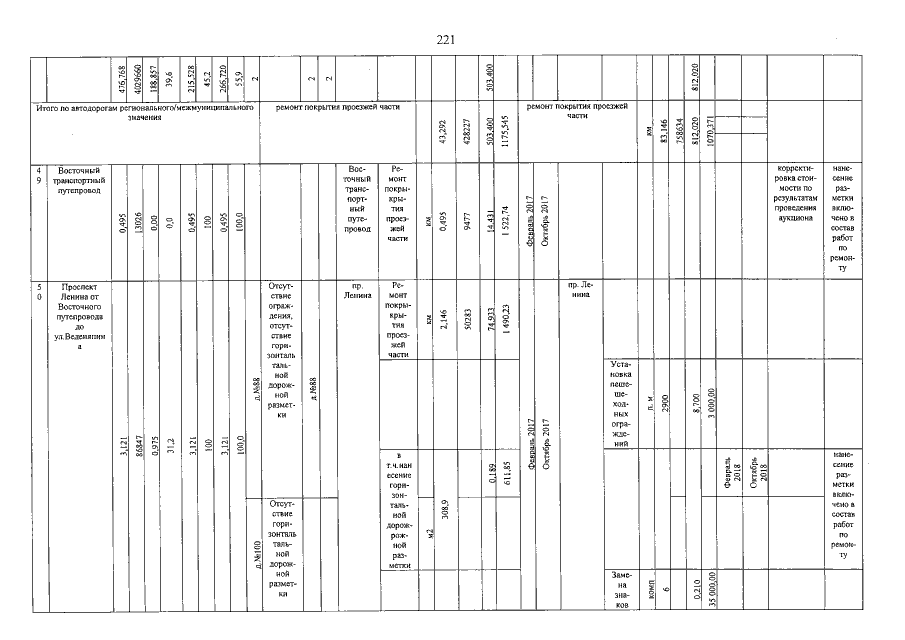
Постановление Правительства Нижегородской области от 23.10.2017 № 758
"О внесении изменений в постановление Правительства Нижегородской области от 30 апреля 2014 года № 303"
Номер опубликования: 5200201710270001
Дата опубликования: 27.10.2017
Страница №222 из 322:
Увеличить