Официальное опубликование правовых актов
ОФИЦИАЛЬНОЕ ОПУБЛИКОВАНИЕ
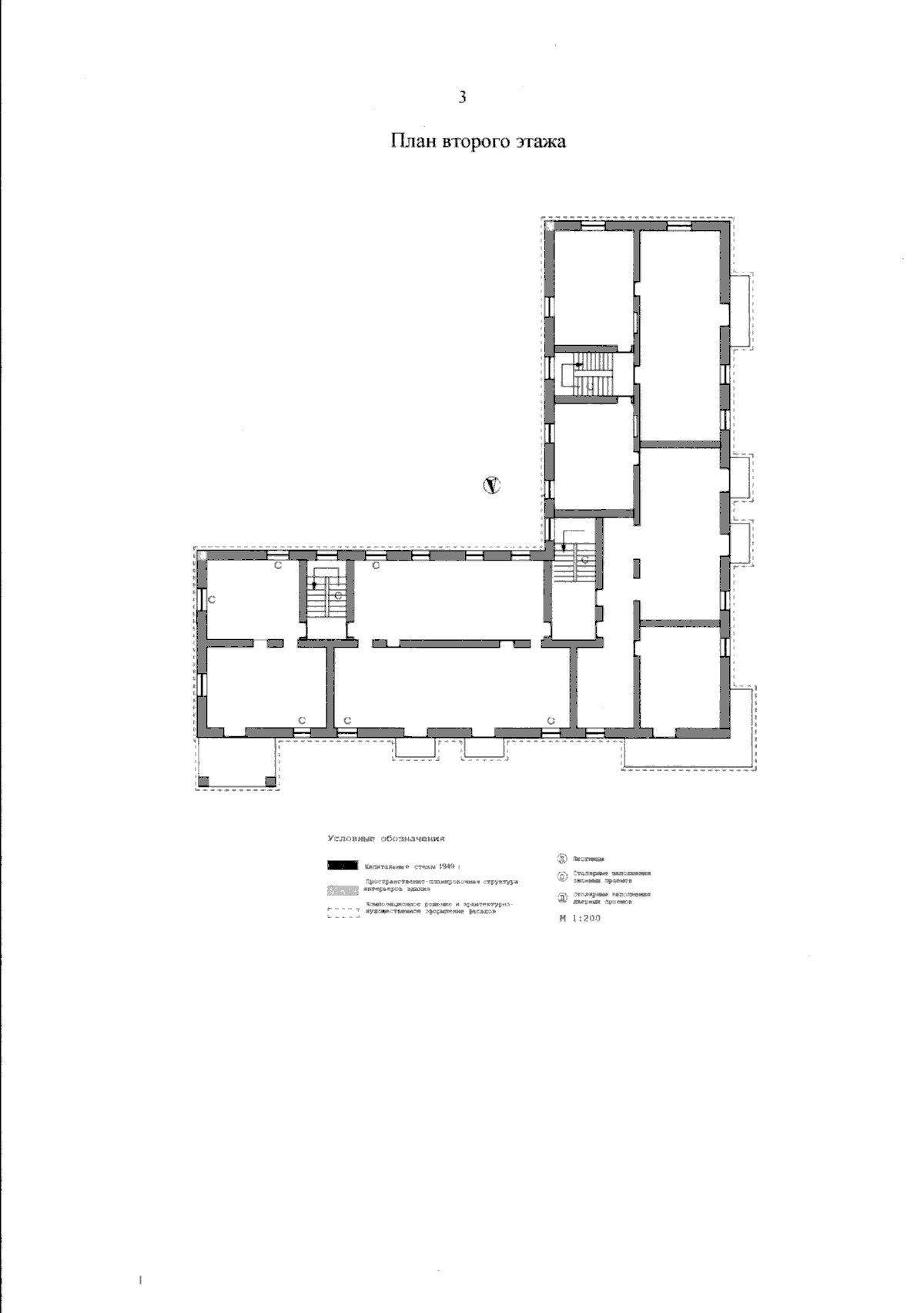
Распоряжение Главного управления культурного наследия Московской области от 02.06.2025 № 06РВ-318
"О включении выявленного объекта культурного наследия в единый государственный реестр объектов культурного наследия (памятников истории и культуры) народов Российской Федерации в качестве объекта культурного наследия регионального значения и утверждении границы и режима использования его территории и предмета охраны"
(Зарегистрирован 02.06.2025 № 26-511/2025)
Номер опубликования: 5001202506030002
Дата опубликования: 03.06.2025
Страница №91 из 157:
Увеличить