Официальное опубликование правовых актов
ОФИЦИАЛЬНОЕ ОПУБЛИКОВАНИЕ
Постановление Правительства Московской области от 02.11.2024 № 1330-ПП
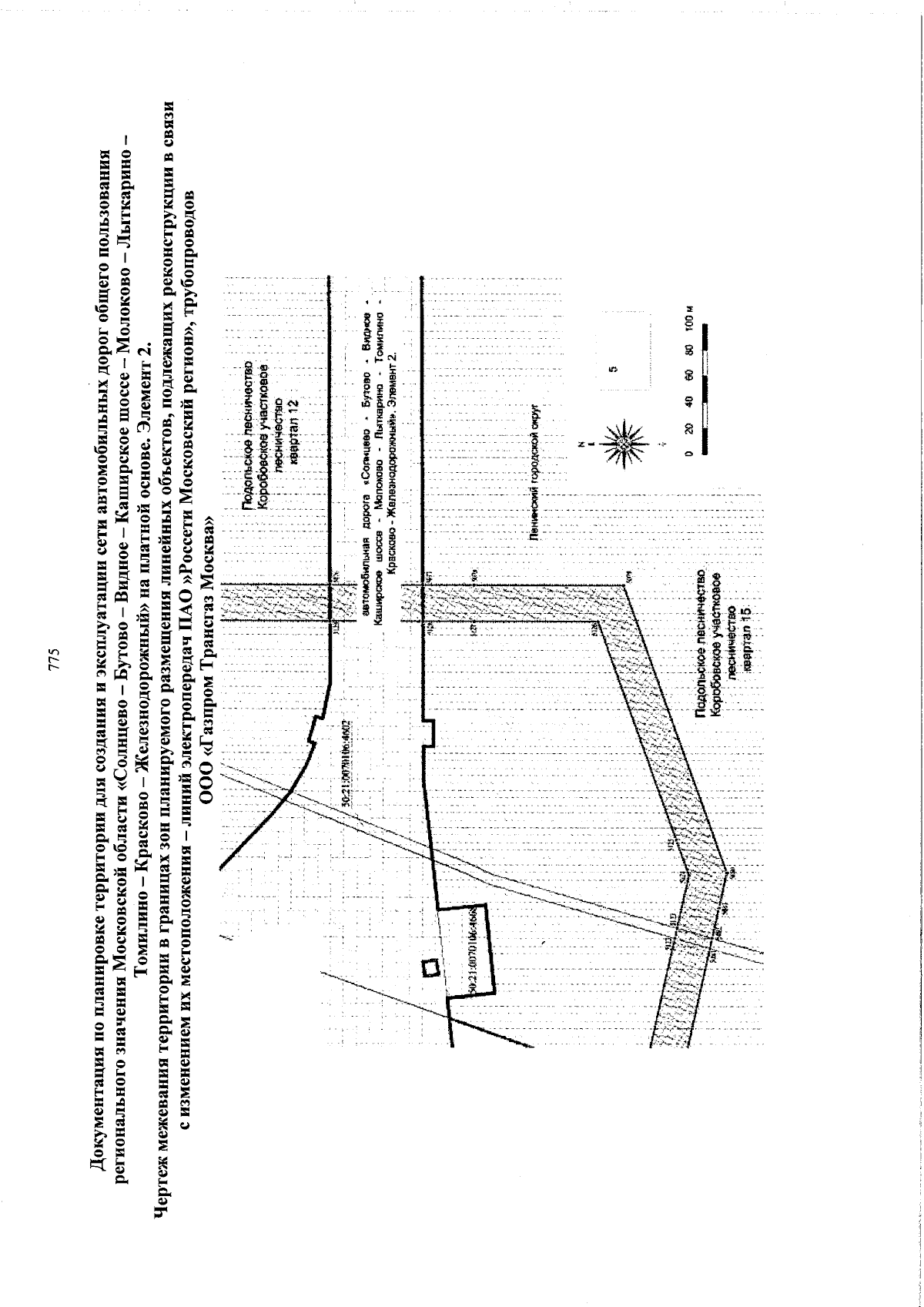
"О внесении изменений в документацию по планировке территории для создания и эксплуатации сети автомобильных дорог общего пользования регионального значения Московской области "Солнцево — Бутово — Видное — Каширское шоссе — Молоково — Лыткарино — Томилино — Красково — Железнодорожный" на платной основе. Элемент 2. Участок автомобильной дороги от примыкания к автомобильной дороге Каширское шоссе до примыкания к автомобильной дороге Москва — Жуковский"
Номер опубликования: 5000202411050002
Дата опубликования: 05.11.2024
Страница №777 из 786:
Увеличить