Официальное опубликование правовых актов
ОФИЦИАЛЬНОЕ ОПУБЛИКОВАНИЕ
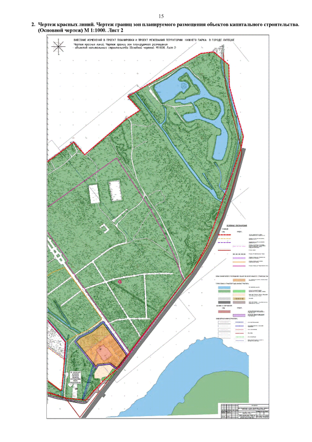
Приказ управления строительства и архитектуры Липецкой области от 21.03.2023 № 71
"Об утверждении документации по планировке территории (проект планировки и проект межевания) "Нижний парк" в городе Липецке"
Номер опубликования: 4801202303270011
Дата опубликования: 27.03.2023
Страница №18 из 26:
Увеличить