Официальное опубликование правовых актов
ОФИЦИАЛЬНОЕ ОПУБЛИКОВАНИЕ
Приказ управления строительства и архитектуры Липецкой области от 13.03.2023 № 60
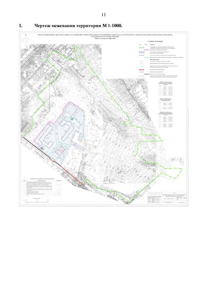
"Об утверждении проекта изменений в документацию по планировке территории (проект планировки) квартала, ограниченного улицами Механизаторов, Индустриальная, Володарского в городе Липецке"
Номер опубликования: 4801202303210007
Дата опубликования: 21.03.2023
Страница №13 из 13:
Увеличить