Официальное опубликование правовых актов
ОФИЦИАЛЬНОЕ ОПУБЛИКОВАНИЕ
Приказ Комитета градостроительной политики Ленинградской области от 13.11.2024 № 180
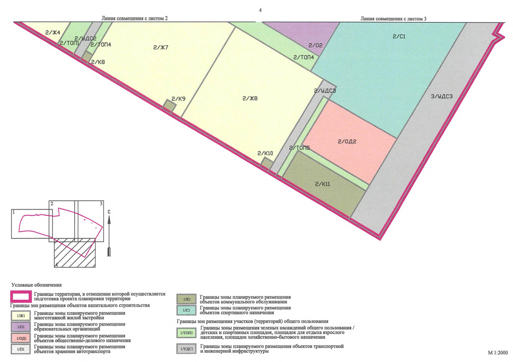
"Об утверждении проекта планировки территории и проекта межевания территории, включающей земельные участки 47:14:0504001:2968, 47:14:0504001:2969, 47:14:0504001:2970, 47:14:0504001:2971, 47:14:0504001:2974, 47:14:0504001:2988, 47:14:0504001:4196, 47:14:0504001:2972 и расположенной в г.п. Новоселье муниципального образования Аннинское городское поселение Ломоносовского муниципального района Ленинградской области"
(Зарегистрирован 13.11.2024 № 01-06-180/2024)
Номер опубликования: 4701202411190003
Дата опубликования: 19.11.2024
Страница №14 из 81:
Увеличить