Официальное опубликование правовых актов
ОФИЦИАЛЬНОЕ ОПУБЛИКОВАНИЕ
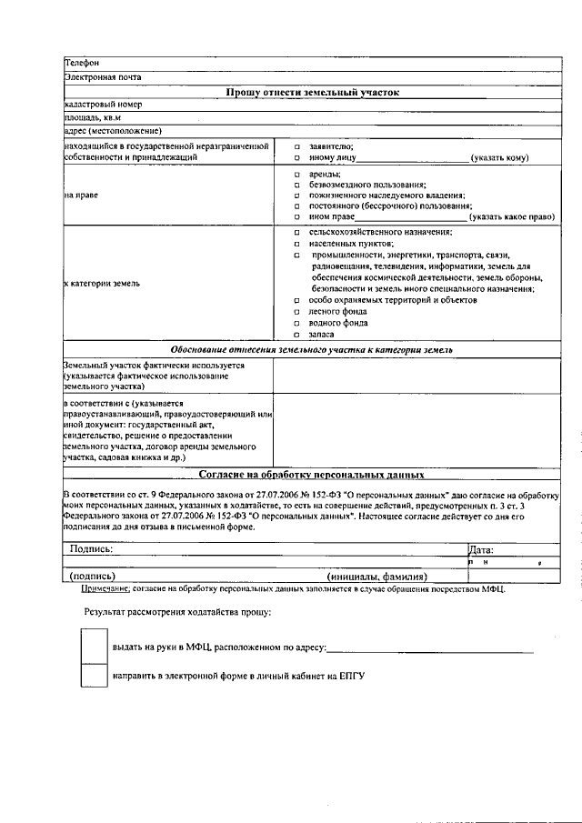
Приказ Ленинградского областного комитета по управлению государственным имуществом от 03.03.2023 № 7
"О внесении изменений в отдельные приказы Ленинградского областного комитета по управлению государственным имуществом, утверждающие административные регламенты предоставления государственных услуг"
(Зарегистрирован 03.03.2023 № 7)
Номер опубликования: 4701202303070003
Дата опубликования: 07.03.2023
Страница №19 из 21:
Увеличить