Официальное опубликование правовых актов
ОФИЦИАЛЬНОЕ ОПУБЛИКОВАНИЕ
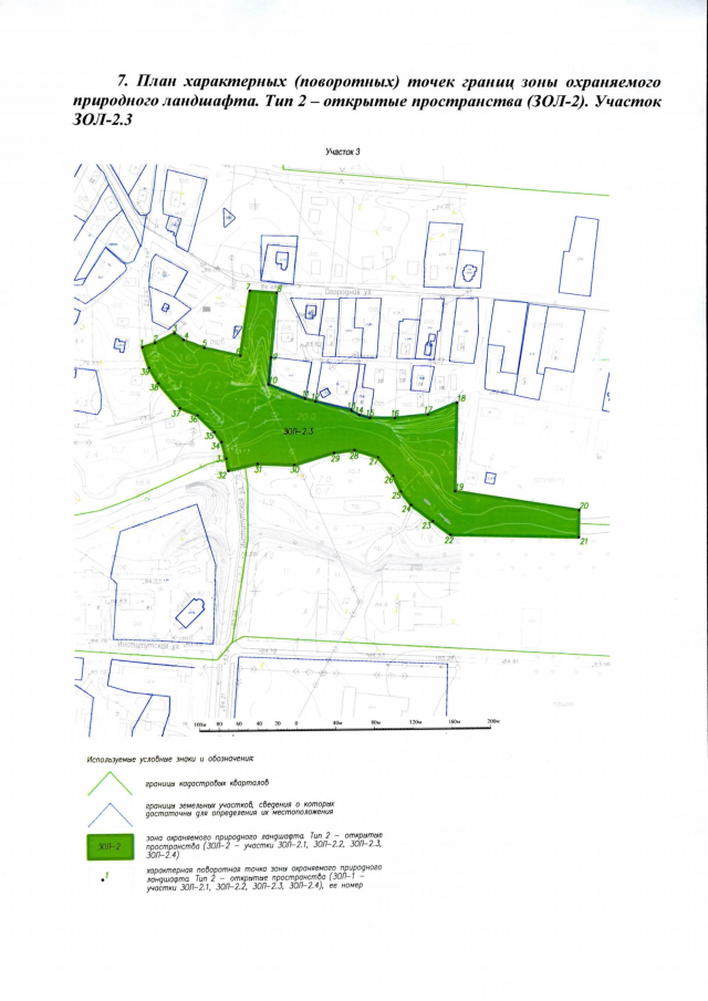
Приказ Комитета по сохранению культурного наследия Ленинградской области от 18.04.2022 № 01-03/22-67
"Об установлении границ зон охраны объекта культурного наследия регионального значения "Усадьба Елисеева", расположенного по адресу: Ленинградская обл., Гатчинский район, п. Белогорка, ул. Институтская, д. 1, 3, и об утверждении требований к градостроительным регламентам в границах территорий данных зон"
Номер опубликования: 4701202204250011
Дата опубликования: 25.04.2022
Страница №42 из 98:
Увеличить