Официальное опубликование правовых актов
ОФИЦИАЛЬНОЕ ОПУБЛИКОВАНИЕ
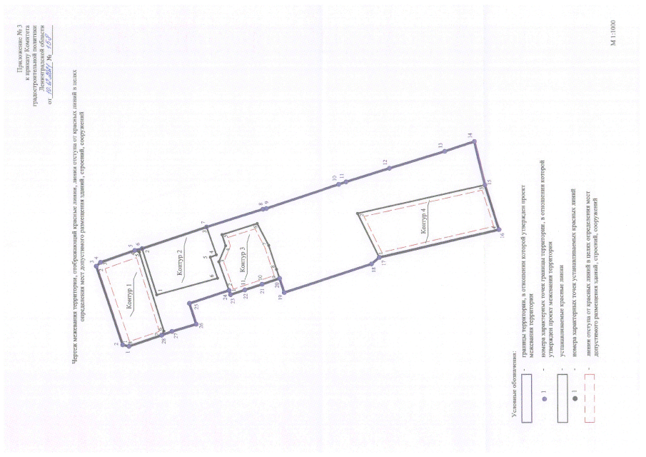
Приказ Комитета градостроительной политики Ленинградской области от 10.12.2021 № 158
"Об утверждении проекта межевания территории, расположенной в северо-восточной части кадастрового квартала 47:20:0801007 п. Алексеевка Опольевского сельского поселения Кингисеппского муниципального района Ленинградской области"
Номер опубликования: 4701202112150018
Дата опубликования: 15.12.2021
Страница №9 из 10:
Увеличить