Официальное опубликование правовых актов
ОФИЦИАЛЬНОЕ ОПУБЛИКОВАНИЕ
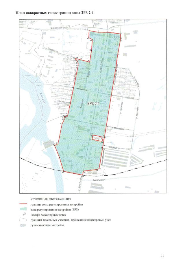
Приказ Комитета по культуре Ленинградской области от 17.08.2020 № 01-03/20-226
"О включении в перечень исторических поселений, имеющих особое значение для истории и культуры Ленинградской области, города Ивангорода Ленинградской области"
Номер опубликования: 4701202008250006
Дата опубликования: 25.08.2020
Страница №22 из 74:
Увеличить