Официальное опубликование правовых актов
ОФИЦИАЛЬНОЕ ОПУБЛИКОВАНИЕ
Приказ Инспекции по охране объектов культурного наследия Костромской области от 30.03.2026 № 18-НПА
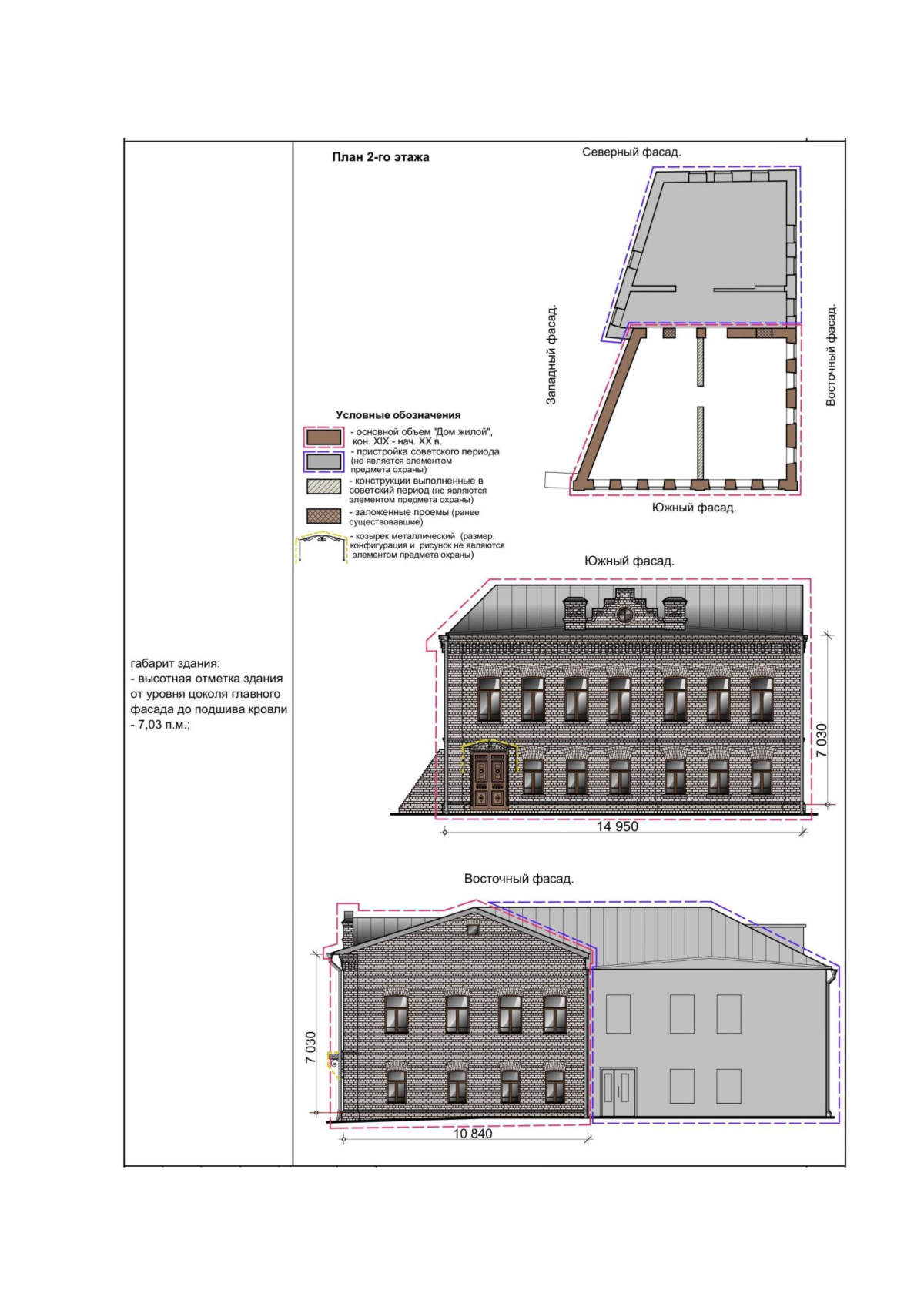
"Об утверждении предмета охраны объекта культурного наследия регионального значения "Усадьба Лобанова, XIX в.: Дом жилой", кон. XIX - нач. XX в. (Костромская область, г. Нерехта, ул. Р. Люксембург, 5)"
(Зарегистрирован 01.04.2026 № 147)
Номер опубликования: 4401202604020004
Дата опубликования: 02.04.2026
Страница №7 из 13:
Увеличить