Официальное опубликование правовых актов
ОФИЦИАЛЬНОЕ ОПУБЛИКОВАНИЕ
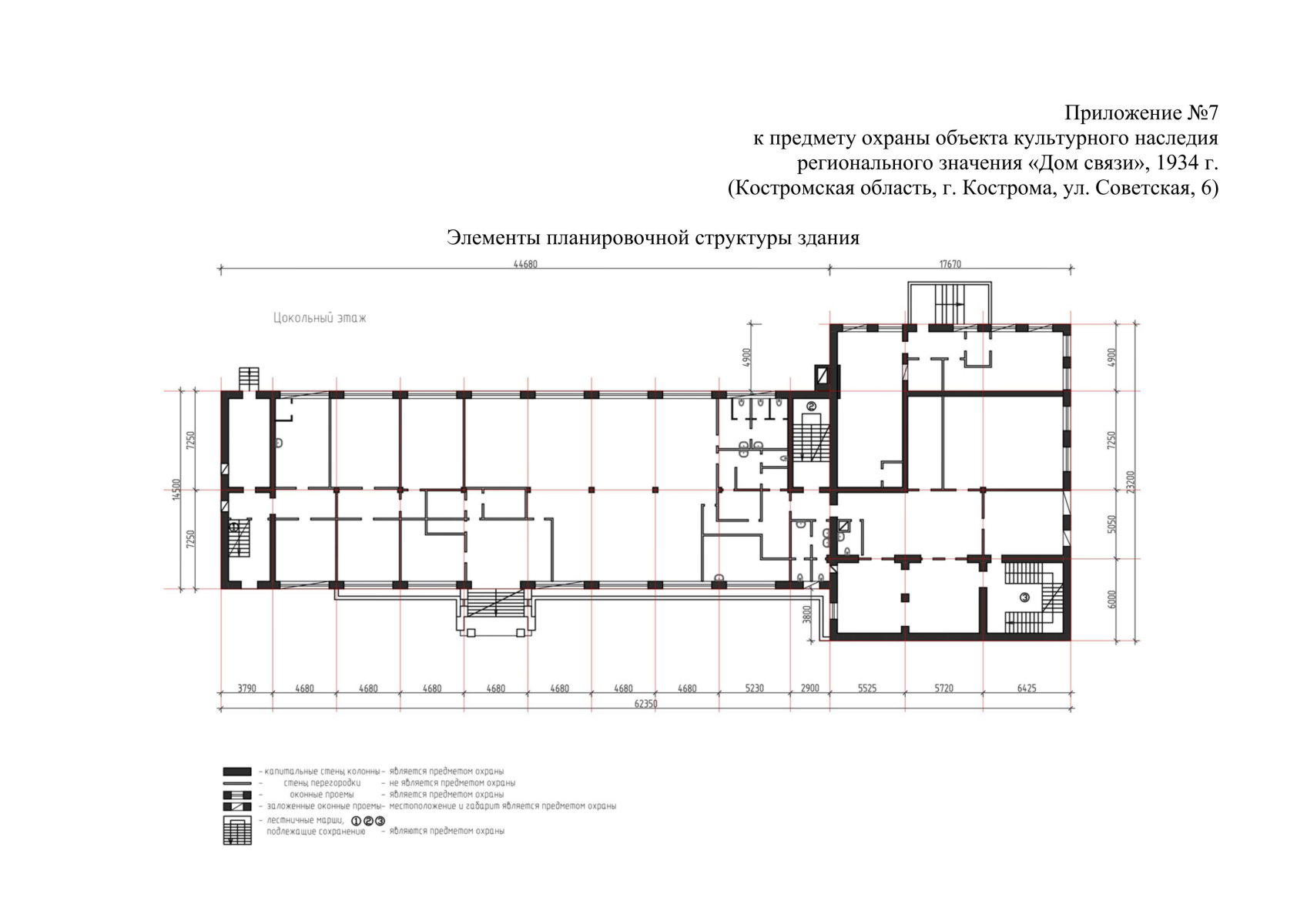
Приказ Инспекции по охране объектов культурного наследия Костромской области от 29.04.2025 № 39-НПА
"Об утверждении предмета охраны объекта культурного наследия регионального значения "Дом связи", 1934 г. (Костромская область, г. Кострома, ул. Советская, 6)"
(Зарегистрирован 05.05.2025 № 213)
Номер опубликования: 4401202505050008
Дата опубликования: 05.05.2025
Страница №23 из 26:
Увеличить