Официальное опубликование правовых актов
ОФИЦИАЛЬНОЕ ОПУБЛИКОВАНИЕ
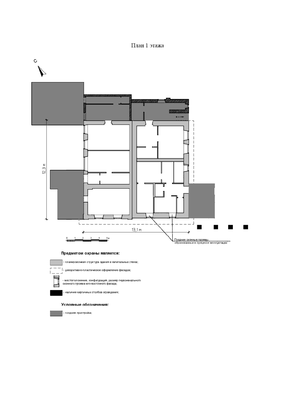
Приказ Инспекции по охране объектов культурного наследия Костромской области от 10.03.2025 № 20-НПА
"Об утверждении предмета охраны объекта культурного наследия регионального значения "Усадьба Пермяковых, XIX-XX вв.: Баня", ок. 1912 г. (Костромская область, г. Кострома, ул. Кооперации, 11Б)"
(Зарегистрирован 13.03.2025 № 125)
Номер опубликования: 4401202503130001
Дата опубликования: 13.03.2025
Страница №8 из 13:
Увеличить