Официальное опубликование правовых актов
ОФИЦИАЛЬНОЕ ОПУБЛИКОВАНИЕ
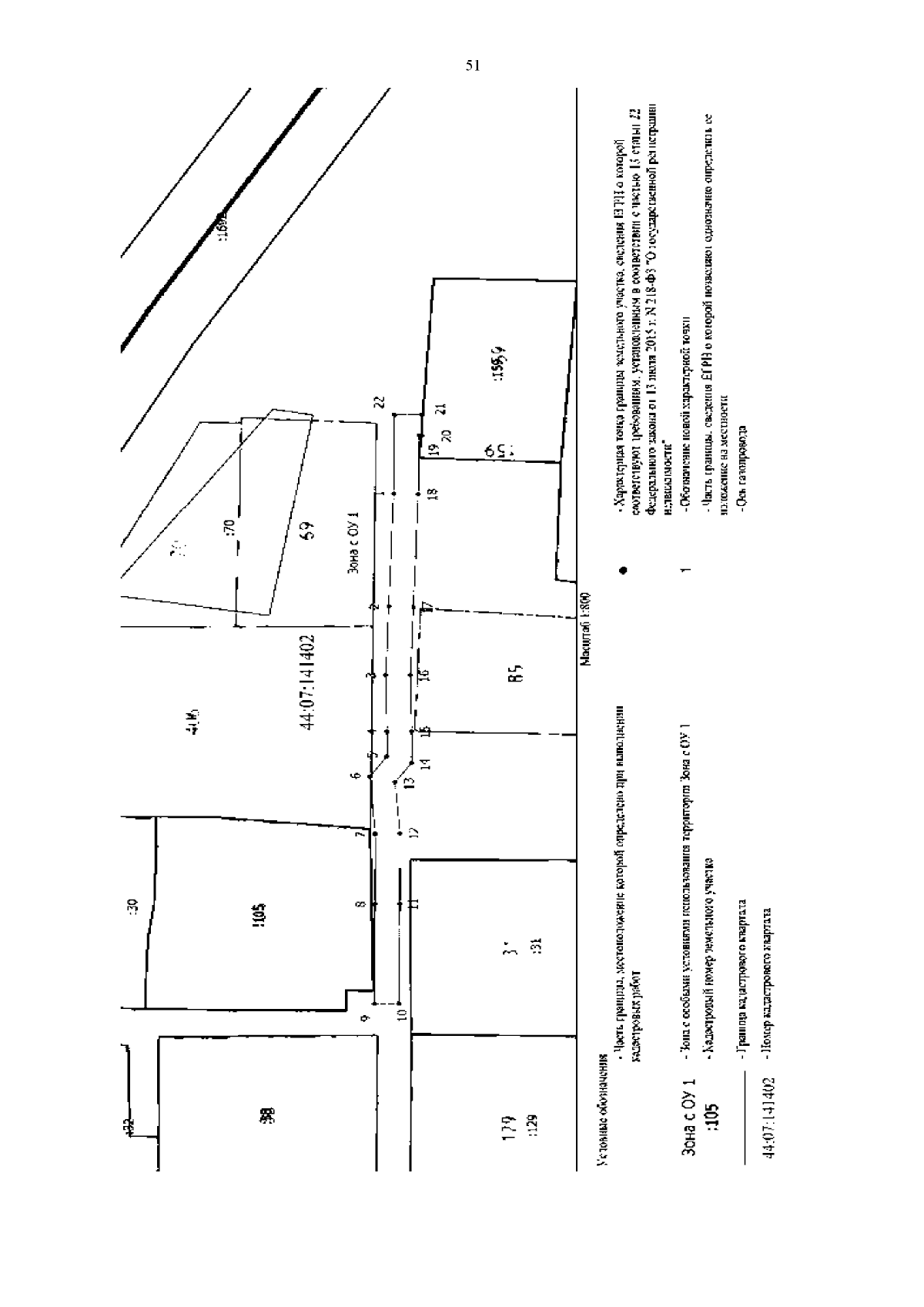
Приказ Департамента имущественных и земельных отношений Костромской области от 05.06.2024 № 80-од
"Об установлении охранных зон газопроводов газораспределительных сетей"
(Зарегистрирован 11.06.2024 № 291)
Номер опубликования: 4401202406130003
Дата опубликования: 13.06.2024
Страница №53 из 57:
Увеличить