Официальное опубликование правовых актов
ОФИЦИАЛЬНОЕ ОПУБЛИКОВАНИЕ
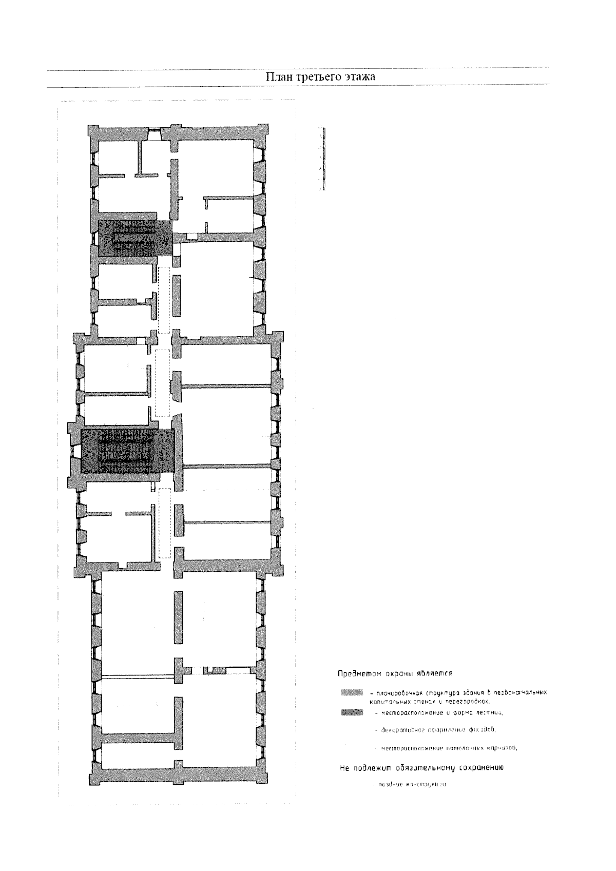
Приказ Инспекции по охране объектов культурного наследия Костромской области от 30.05.2024 № 40-НПА
"Об утверждении предмета охраны объекта культурного наследия регионального значения "Дворянский пансион-приют", 1902 г. (Костромская область, г. Кострома, ул. Ленина, 10)"
(Зарегистрирован 03.06.2024 № 278)
Номер опубликования: 4401202406060003
Дата опубликования: 06.06.2024
Страница №12 из 28:
Увеличить