Официальное опубликование правовых актов
ОФИЦИАЛЬНОЕ ОПУБЛИКОВАНИЕ
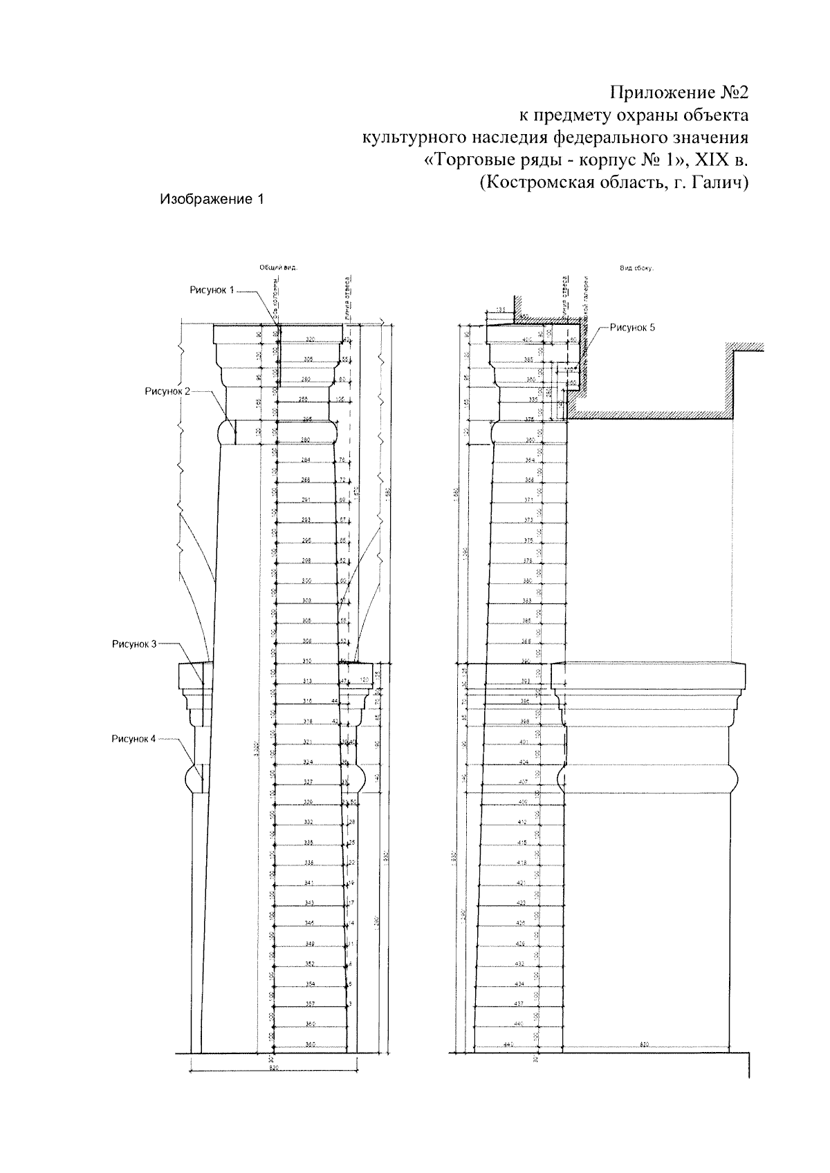
Приказ Инспекции по охране объектов культурного наследия Костромской области от 01.02.2024 № 18-НПА
"Об утверждении предмета охраны объекта культурного наследия федерального значения "Торговые ряды - корпус № 1", XIX в. (Костромская область, г. Галич)"
(Зарегистрирован 07.02.2024 № 63)
Номер опубликования: 4401202402080001
Дата опубликования: 08.02.2024
Страница №9 из 12:
Увеличить