Официальное опубликование правовых актов
ОФИЦИАЛЬНОЕ ОПУБЛИКОВАНИЕ
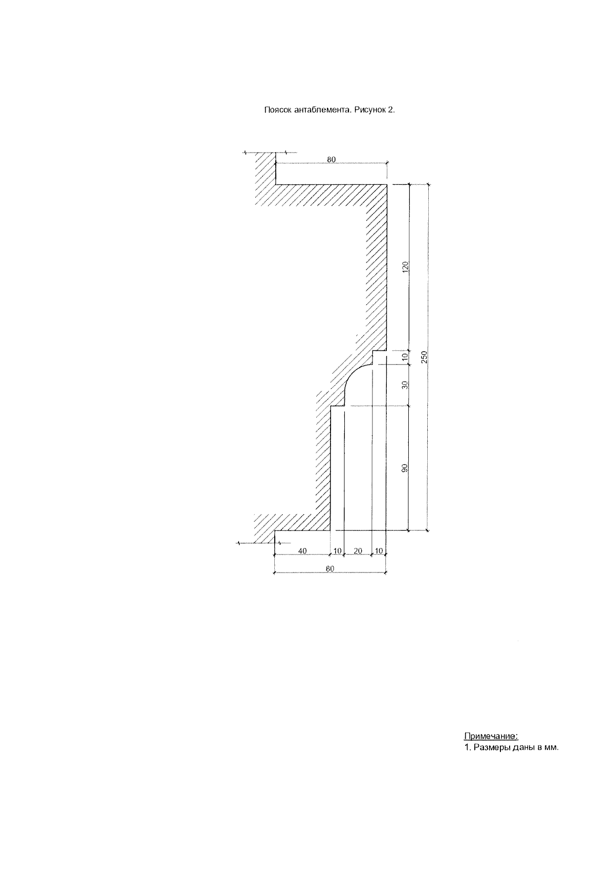
Приказ Инспекции по охране объектов культурного наследия Костромской области от 20.11.2023 № 78-НПА
"Об утверждении предмета охраны объекта культурного наследия федерального значения "Торговые ряды - корпус № 10", XIX в. (Костромская область, г. Галич)"
(Зарегистрирован 24.11.2023 № 522)
Номер опубликования: 4401202311280002
Дата опубликования: 28.11.2023
Страница №16 из 19:
Увеличить