Официальное опубликование правовых актов
ОФИЦИАЛЬНОЕ ОПУБЛИКОВАНИЕ
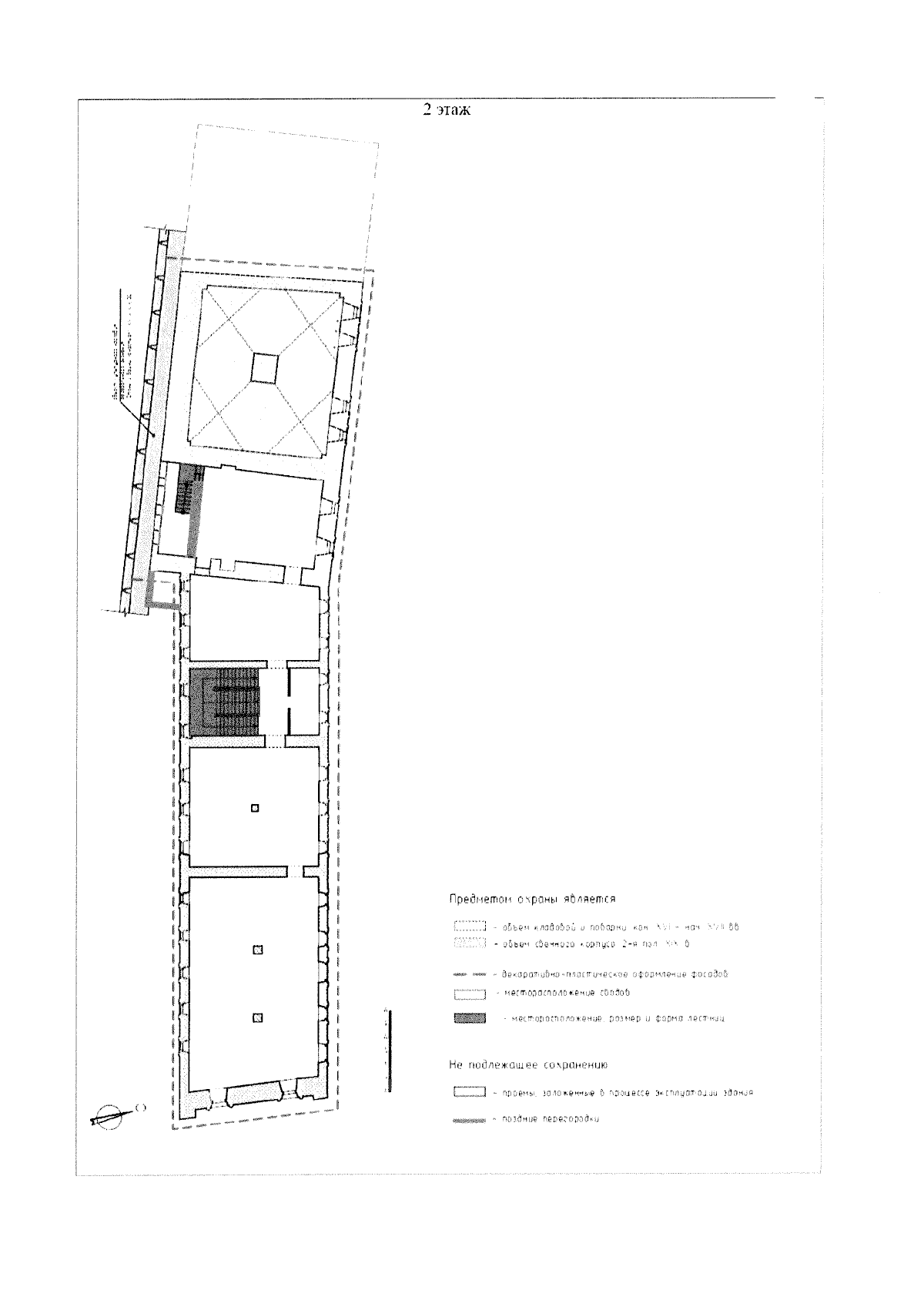
Приказ Инспекции по охране объектов культурного наследия Костромской области от 10.11.2023 № 74-НПА
"Об утверждении предмета охраны объекта культурного наследия федерального значения "Ансамбль Ипатьевского монастыря, XVI-XIX вв.: Свечной корпус", XVI-XIX вв. (Костромская область, г. Кострома, ул. Просвещения, 1)"
(Зарегистрирован 16.11.2023 № 487)
Номер опубликования: 4401202311200001
Дата опубликования: 20.11.2023
Страница №10 из 18:
Увеличить