Официальное опубликование правовых актов
ОФИЦИАЛЬНОЕ ОПУБЛИКОВАНИЕ
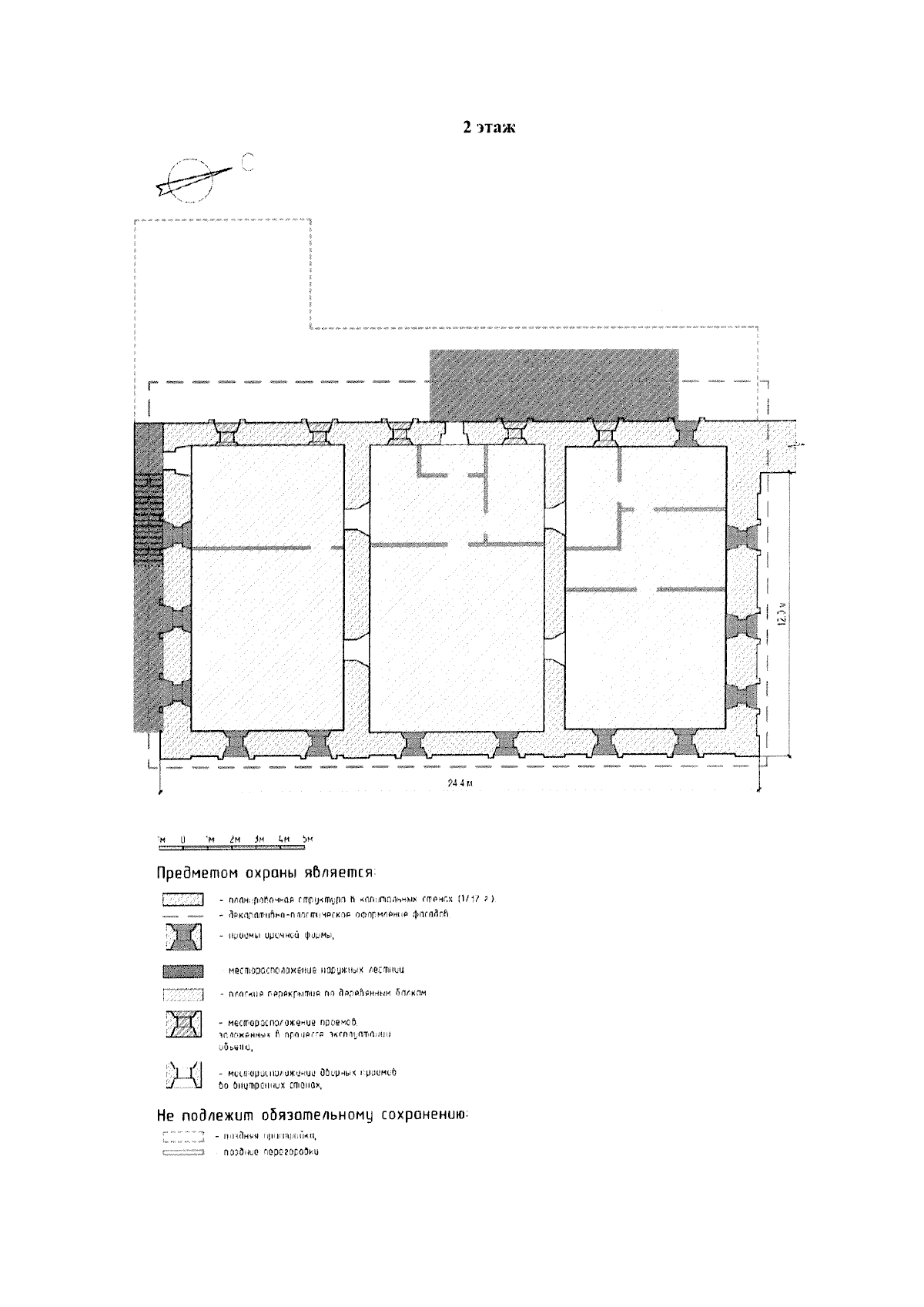
Приказ Инспекции по охране объектов культурного наследия Костромской области от 13.11.2023 № 75-НПА
"Об утверждении предмета охраны объекта культурного наследия федерального значения "Ансамбль Ипатьевского монастыря, XVI-XIX вв.: Корпус над погребами", XVI-XIX вв. (Костромская область, г. Кострома, ул. Просвещения, 1)"
(Зарегистрирован 15.11.2023 № 465)
Номер опубликования: 4401202311160002
Дата опубликования: 16.11.2023
Страница №10 из 15:
Увеличить