Официальное опубликование правовых актов
ОФИЦИАЛЬНОЕ ОПУБЛИКОВАНИЕ
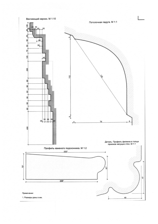
Приказ Инспекции по охране объектов культурного наследия Костромской области от 09.12.2021 № 181
"Об утверждении предмета охраны объекта культурного наследия регионального значения "Уездная земская больница, 1901 г.: Корпус № 1", 1901 г.(Костромская область, г. Кострома, ул. Спасокукоцкого, 29)"
Номер опубликования: 4401202112140005
Дата опубликования: 14.12.2021
Страница №14 из 15:
Увеличить