Официальное опубликование правовых актов
ОФИЦИАЛЬНОЕ ОПУБЛИКОВАНИЕ
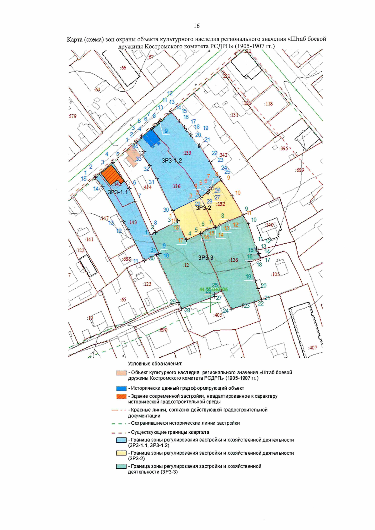
Постановление администрации Костромской области от 30.09.2024 № 336-а
"Об установлении зон охраны объекта культурного наследия регионального значения "Штаб боевой дружины Костромского комитета РСДРП" (1905-1907 гг.), расположенного по адресу: город Кострома, улица Галичская, дом 16"
Номер опубликования: 4400202410010004
Дата опубликования: 01.10.2024
Страница №18 из 32:
Увеличить