Решение управления государственной охраны объектов культурного наследия Кировской области от 25.09.2025 № 89
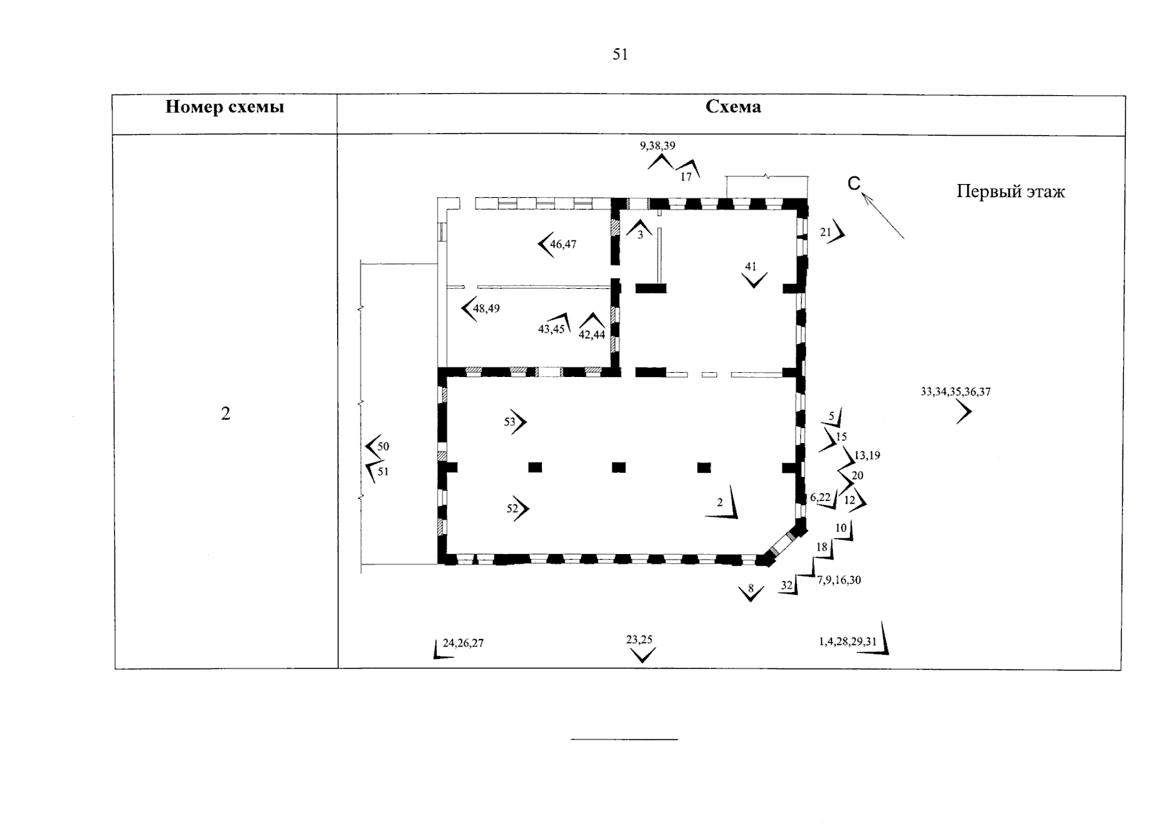
"Об установлении предмета охраны объекта культурного наследия (памятника истории и культуры) народов Российской Федерации регионального значения "Здание табачной фабрики, где в 1898 г. работал революционер Дзержинский Ф.Э.", расположенного по адресу: Кировская область, Нолинский район, г. Нолинск, ул. Дзержинского, д. 45"
(Зарегистрирован 03.10.2025 № 2581)
"Об установлении предмета охраны объекта культурного наследия (памятника истории и культуры) народов Российской Федерации регионального значения "Здание табачной фабрики, где в 1898 г. работал революционер Дзержинский Ф.Э.", расположенного по адресу: Кировская область, Нолинский район, г. Нолинск, ул. Дзержинского, д. 45"
(Зарегистрирован 03.10.2025 № 2581)
Номер опубликования: 4301202510060008
Дата опубликования:
06.10.2025
