Решение управления государственной охраны объектов культурного наследия Кировской области от 31.07.2025 № 67
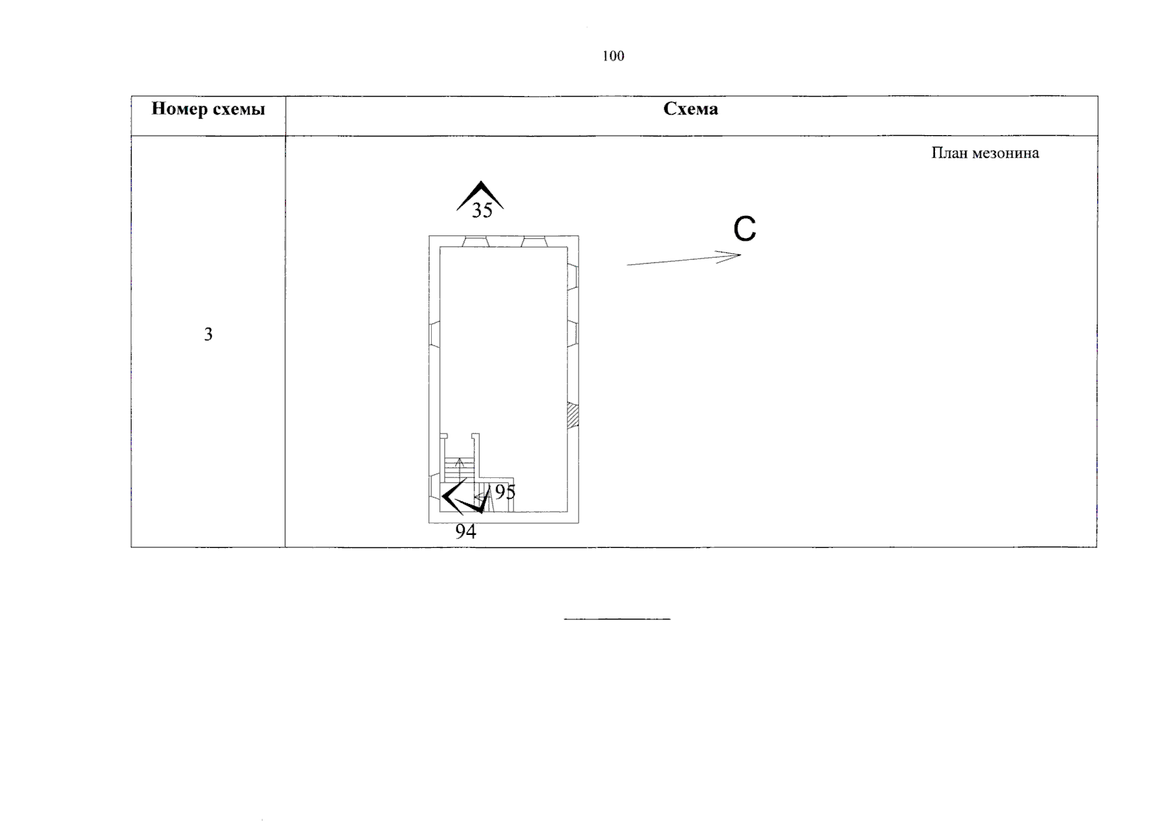
"Об установлении предмета охраны объекта культурного наследия (памятника истории и культуры) народов Российской Федерации регионального значения "Здание зоотехникума, в котором учился Герой Советского Союза Урванцев Яков Ерофеевич (1924 — 1954 гг.)", расположенного по адресу: Кировская область, Уржумский район, г. Уржум, ул. Советская, д. 7"
(Зарегистрирован 11.08.2025 № 2472)
"Об установлении предмета охраны объекта культурного наследия (памятника истории и культуры) народов Российской Федерации регионального значения "Здание зоотехникума, в котором учился Герой Советского Союза Урванцев Яков Ерофеевич (1924 — 1954 гг.)", расположенного по адресу: Кировская область, Уржумский район, г. Уржум, ул. Советская, д. 7"
(Зарегистрирован 11.08.2025 № 2472)
Номер опубликования: 4301202508120001
Дата опубликования:
12.08.2025
