Официальное опубликование правовых актов
ОФИЦИАЛЬНОЕ ОПУБЛИКОВАНИЕ
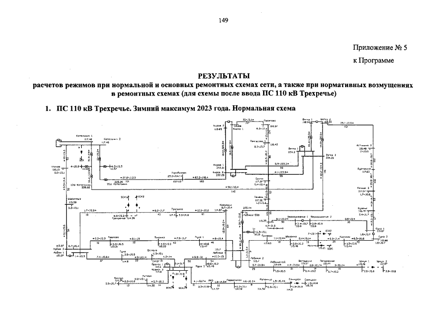
Указ Губернатора Кировской области от 30.04.2020 № 65
"Об утверждении Программы развития электроэнергетики Кировской области на 2021 – 2025 годы"
Номер опубликования: 4300202005120003
Дата опубликования: 12.05.2020
Страница №150 из 177:
Увеличить