Официальное опубликование правовых актов
ОФИЦИАЛЬНОЕ ОПУБЛИКОВАНИЕ
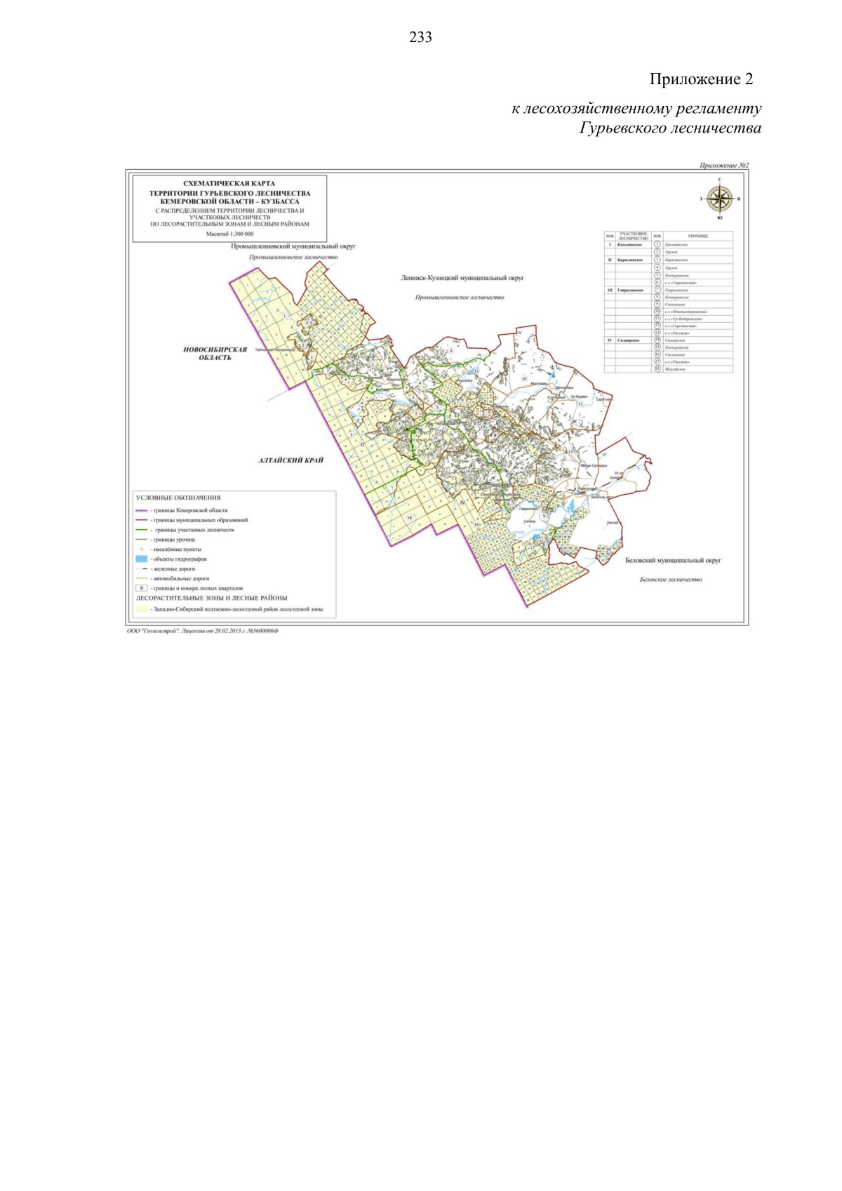
Распоряжение Министерства лесного комплекса и охотничьего хозяйства Кузбасса от 22.12.2025 № 01-05/28
"О внесении изменений в приказ департамента лесного комплекса Кемеровской области от 20.11.2018 № 01-06/2725 "Об утверждении лесохозяйственных регламентов"
(Зарегистрирован 13.02.2026 № 00662634206)
Номер опубликования: 4201202602160002
Дата опубликования: 16.02.2026
Страница №233 из 273:
Увеличить