Официальное опубликование правовых актов
ОФИЦИАЛЬНОЕ ОПУБЛИКОВАНИЕ
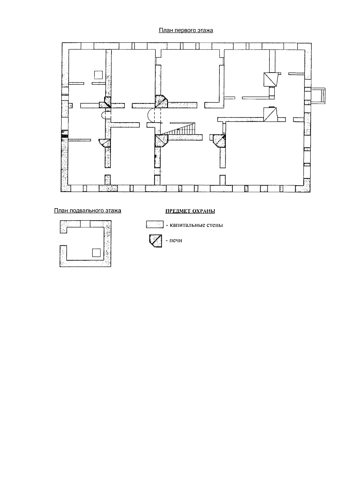
Приказ Управления по охране объектов культурного наследия Калужской области от 14.02.2025 № 21
"О включении в единый государственный реестр объектов культурного наследия (памятников истории и культуры) народов Российской Федерации выявленного объекта культурного наследия "Сельская усадьба Барыкова", 1870 г., (Калужская область, Бабынинский район, с. Кумовское)"
(Зарегистрирован 07.03.2025 № 15285)
Номер опубликования: 4001202503100003
Дата опубликования: 10.03.2025
Страница №16 из 28:
Увеличить