Приказ Управления по охране объектов культурного наследия Калужской области от 31.05.2019 № 141
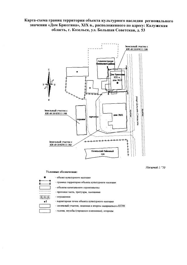
"Об утверждении границ и режима использования территории объекта культурного наследия регионального значения "Дом Брюзгина", XIX в., расположенного по адресу: Калужская область, г. Козельск, ул. Большая Советская, д. 53"
(Зарегистрирован 20.06.2019 № 8740)
"Об утверждении границ и режима использования территории объекта культурного наследия регионального значения "Дом Брюзгина", XIX в., расположенного по адресу: Калужская область, г. Козельск, ул. Большая Советская, д. 53"
(Зарегистрирован 20.06.2019 № 8740)
Номер опубликования: 4001201906270001
Дата опубликования:
27.06.2019
