Приказ Управления по охране объектов культурного наследия Калужской области от 29.04.2019 № 94
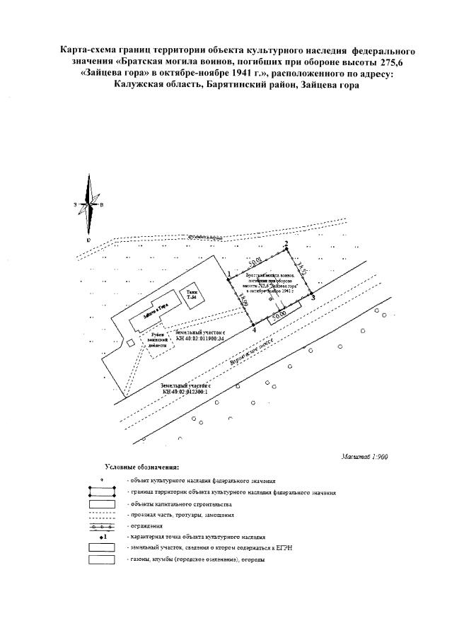
"Об утверждении границ и режима использования территории объекта культурного наследия федерального значения "Братская могила воинов, погибших при обороне высоты 275,6 "Зайцева гора" в октябре-ноябре 1941 г.", расположенного по адресу: Калужская область, Барятинский район, Зайцева гора"
(Зарегистрирован 14.05.2019 № 8634)
"Об утверждении границ и режима использования территории объекта культурного наследия федерального значения "Братская могила воинов, погибших при обороне высоты 275,6 "Зайцева гора" в октябре-ноябре 1941 г.", расположенного по адресу: Калужская область, Барятинский район, Зайцева гора"
(Зарегистрирован 14.05.2019 № 8634)
Номер опубликования: 4001201905220002
Дата опубликования:
22.05.2019
