Официальное опубликование правовых актов
ОФИЦИАЛЬНОЕ ОПУБЛИКОВАНИЕ
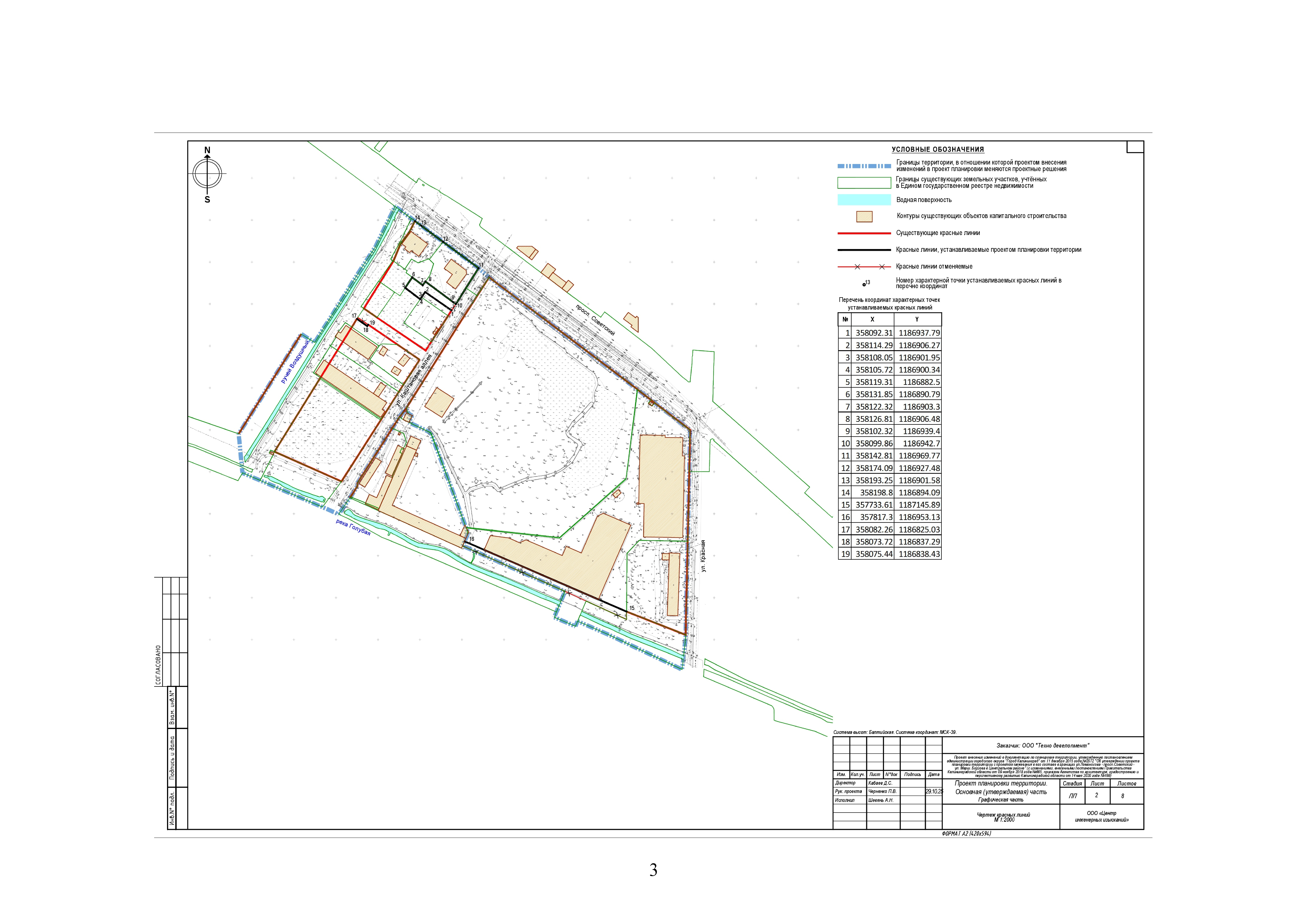
Приказ Министерства градостроительной политики Калининградской области от 12.03.2026 № 120
"Об утверждении изменений в документацию по планировке территории, утвержденную постановлением администрации городского округа "Город Калининград" от 11 декабря 2015 года № 2072"
(Зарегистрирован 12.03.2026 № ГР/175/2026)
Номер опубликования: 3901202603130001
Дата опубликования: 13.03.2026
Страница №5 из 17: