Приказ Министерства градостроительной политики Калининградской области от 02.10.2025 № 363
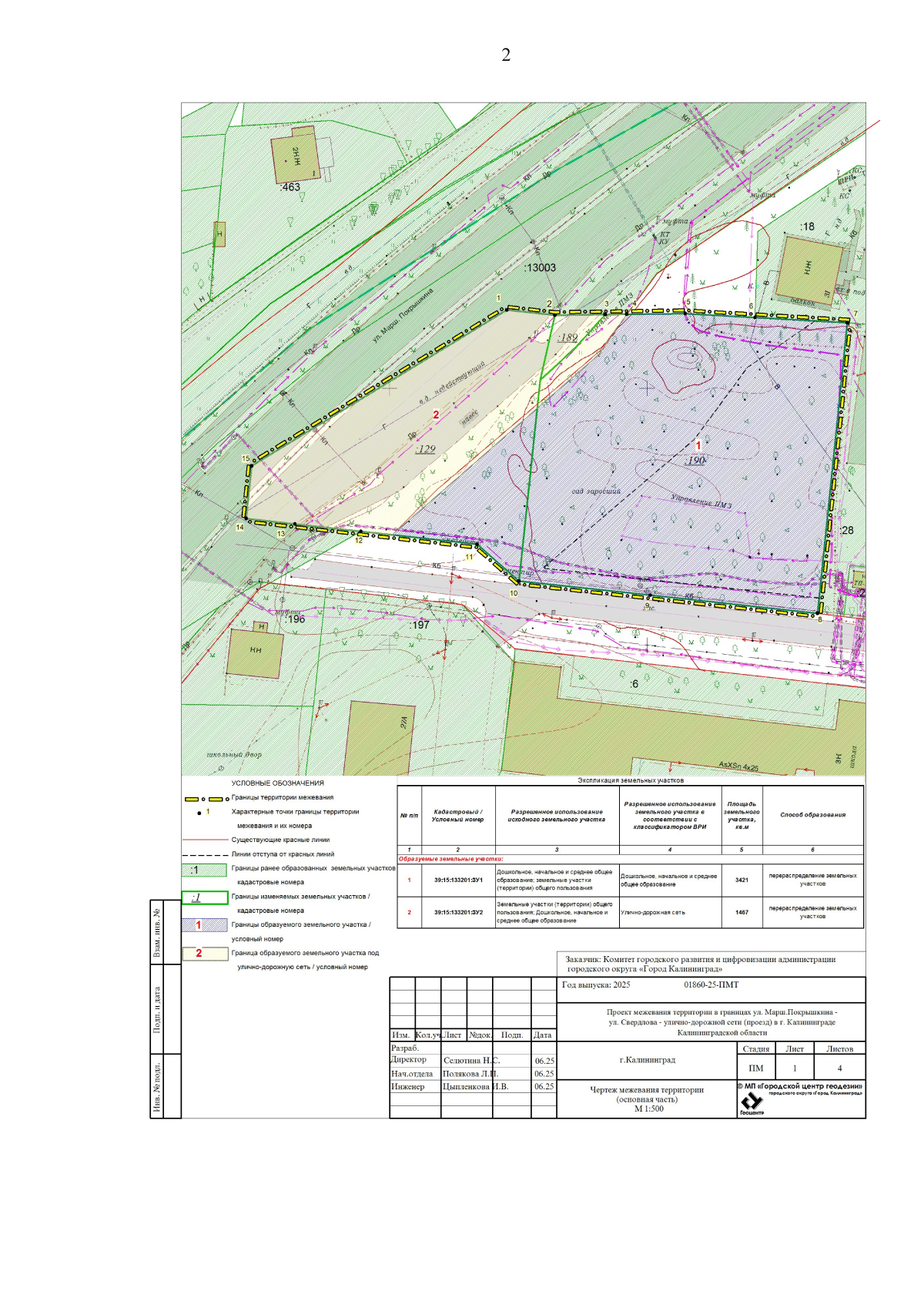
"Об утверждении проекта межевания территории в границах ул. Марш. Покрышкина – ул. Свердлова – улично-дорожной сети (проезд) в г. Калининграде Калининградской области"
(Зарегистрирован 02.10.2025 № ГР/698/2025)
"Об утверждении проекта межевания территории в границах ул. Марш. Покрышкина – ул. Свердлова – улично-дорожной сети (проезд) в г. Калининграде Калининградской области"
(Зарегистрирован 02.10.2025 № ГР/698/2025)
Номер опубликования: 3901202510070005
Дата опубликования:
07.10.2025
