Официальное опубликование правовых актов
ОФИЦИАЛЬНОЕ ОПУБЛИКОВАНИЕ
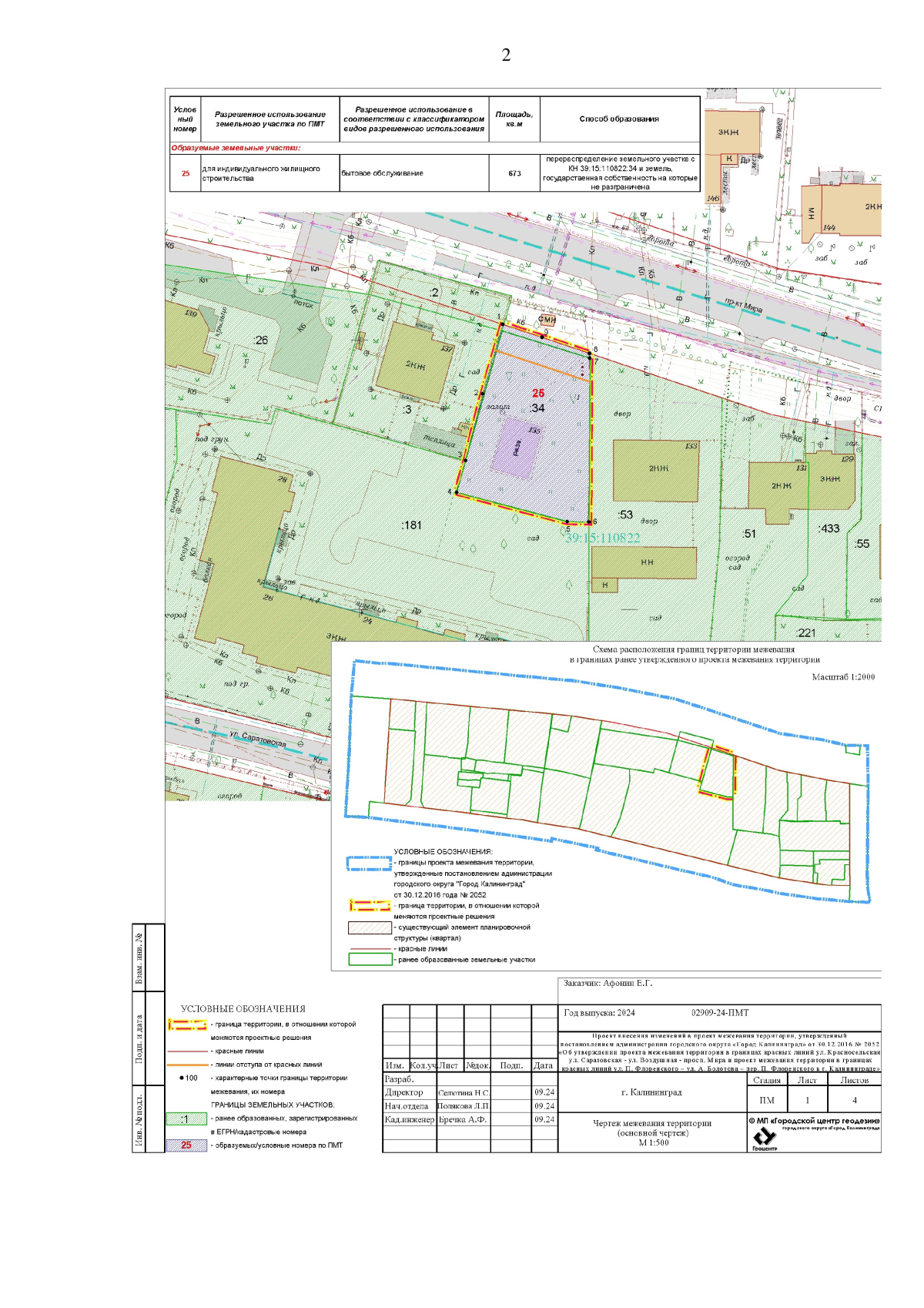
Приказ Министерства градостроительной политики Калининградской области от 17.01.2025 № 05
"Об утверждении изменений в проект межевания территории, утвержденный постановлением администрации городского округа "Город Калининград" от 30 декабря 2016 года № 2052"
(Зарегистрирован 17.01.2025 № ГР/20/2025)
Номер опубликования: 3901202501230009
Дата опубликования: 23.01.2025
Страница №4 из 7:
Увеличить