Приказ Министерства градостроительной политики Калининградской области от 07.11.2024 № 395
"Об утверждении проекта планировки территории с проектом межевания в его составе в границах улиц Хуторская – Капитанская – Рабочая в городе Пионерский Калининградской области"
(Зарегистрирован 07.11.2024 № ГР/868/2024)
"Об утверждении проекта планировки территории с проектом межевания в его составе в границах улиц Хуторская – Капитанская – Рабочая в городе Пионерский Калининградской области"
(Зарегистрирован 07.11.2024 № ГР/868/2024)
Номер опубликования: 3901202411110003
Дата опубликования:
11.11.2024
| Страница №1 из 38: | ||
|
|
||
| Страница №2 из 38: | ||
|
|
||
| Страница №3 из 38: | ||
|
|
||
| Страница №4 из 38: | ||
| Страница №5 из 38: | ||
| Страница №6 из 38: | ||
|
|
||
| Страница №7 из 38: | ||
|
|
||
| Страница №8 из 38: | ||
|
|
||
| Страница №9 из 38: | ||
|
|
||
| Страница №10 из 38: | ||
|
|
||
| Страница №11 из 38: | ||
|
|
||
| Страница №12 из 38: | ||
|
|
||
| Страница №13 из 38: | ||
|
|
||
| Страница №14 из 38: | ||
|
|
||
| Страница №15 из 38: | ||
|
|
||
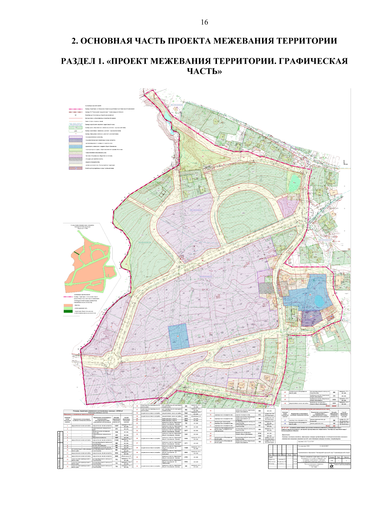
| Страница №16 из 38: | ||
|
|
||
| Страница №17 из 38: | ||
|
|
||
| Страница №18 из 38: | ||
| Страница №19 из 38: | ||
|
|
||
| Страница №20 из 38: | ||
|
|
||
| Страница №21 из 38: | ||
|
|
||
| Страница №22 из 38: | ||
|
|
||
| Страница №23 из 38: | ||
|
|
||
| Страница №24 из 38: | ||
|
|
||
| Страница №25 из 38: | ||
|
|
||
| Страница №26 из 38: | ||
|
|
||
| Страница №27 из 38: | ||
|
|
||
| Страница №28 из 38: | ||
|
|
||
| Страница №29 из 38: | ||
|
|
||
| Страница №30 из 38: | ||
|
|
||
| Страница №31 из 38: | ||
|
|
||
| Страница №32 из 38: | ||
|
|
||
| Страница №33 из 38: | ||
|
|
||
| Страница №34 из 38: | ||
|
|
||
| Страница №35 из 38: | ||
|
|
||
| Страница №36 из 38: | ||
|
|
||
| Страница №37 из 38: | ||
|
|
||
| Страница №38 из 38: | ||
|
|
