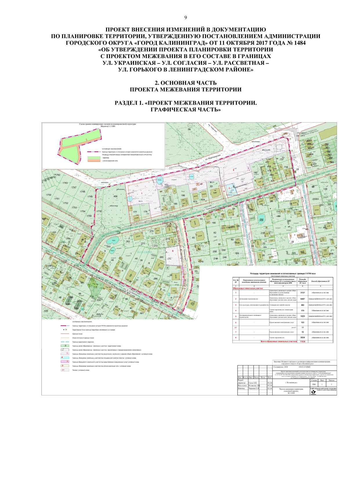
Приказ Министерства градостроительной политики Калининградской области от 25.06.2024 № 207
"Об утверждении проекта внесения изменений в документацию по планировке территории, утвержденную постановлением администрации городского округа "Город Калининград" от 11 октября 2017 года № 1484"
(Зарегистрирован 25.06.2024 № ГР/526/2024)
"Об утверждении проекта внесения изменений в документацию по планировке территории, утвержденную постановлением администрации городского округа "Город Калининград" от 11 октября 2017 года № 1484"
(Зарегистрирован 25.06.2024 № ГР/526/2024)
Номер опубликования: 3901202406270003
Дата опубликования:
27.06.2024
